ΠΡΠΎΠ΅ΠΊΡ ΠΏΠΎΠ·ΠΈΡΠΈΠΎΠ½ΠΈΡΡΠ΅ΡΡΡ ΠΊΠ°ΠΊΒ ΠΊΠΎΠΌΡΠΎΡΡ-ΠΊΠ»Π°ΡΡ ΡΒ ΡΠ»Π΅ΠΌΠ΅Π½ΡΠ°ΠΌΠΈ ΠΏΡΠ΅ΠΌΠΈΠ°Π»ΡΠ½ΠΎΠ³ΠΎ ΠΏΠΎΠ΄Ρ ΠΎΠ΄Π° ΠΊΒ ΠΈΠ½ΡΡΠ°ΡΡΡΡΠΊΡΡΡΠ΅, Π·Π°ΠΊΡΡΠ²Π°Ρ ΠΏΠΎΡΡΠ΅Π±Π½ΠΎΡΡΡ Π²Β ΡΠΏΠΎΠΊΠΎΠΉΠ½ΠΎΠΌ ΠΏΡΠΎΠΆΠΈΠ²Π°Π½ΠΈΠΈ ΡΒ Π΄ΠΎΡΡΡΠΏΠΎΠΌ ΠΊΒ ΠΌΠΎΡΡ. ΠΠ΅Π»ΠΎΠ²Π°Ρ Π°ΠΊΡΠΈΠ²Π½ΠΎΡΡΡ ΡΠΎΡΡΠ΅Π΄ΠΎΡΠΎΡΠ΅Π½Π° Π²Β ΡΠ΅Π½ΡΡΠ΅ Π³ΠΎΡΠΎΠ΄Π°, ΠΊΡΠ΄Π° ΠΌΠΎΠΆΠ½ΠΎ Π΄ΠΎΠ±ΡΠ°ΡΡΡΡ Π·Π°Β ΠΊΠΎΡΠΎΡΠΊΠΎΠ΅ Π²ΡΠ΅ΠΌΡ ΠΈΠ·Β ΡΠ°ΠΉΠΎΠ½Π° Π’Π°ΠΌΠ°ΡΠΈ, ΡΠΎΡ ΡΠ°Π½ΡΡ ΠΏΡΠ΅ΠΈΠΌΡΡΠ΅ΡΡΠ²Π° ΡΠ΄Π°Π»Π΅Π½Π½ΠΎΠΉ Π»ΠΎΠΊΠ°ΡΠΈΠΈ. ΠΡΠΎ Π΄Π΅Π»Π°Π΅Ρ ΠΊΠΎΠΌΠΏΠ»Π΅ΠΊΡ ΠΏΠΎΠ΄Ρ ΠΎΠ΄ΡΡΠΈΠΌ ΠΊΠ°ΠΊΒ Π΄Π»ΡΒ ΡΠ΅Π·ΠΎΠ½Π½ΠΎΠΉ Π°ΡΠ΅Π½Π΄Ρ, ΡΠ°ΠΊ ΠΈΒ Π΄Π»ΡΒ ΠΊΡΡΠ³Π»ΠΎΠ³ΠΎΠ΄ΠΈΡΠ½ΠΎΠ³ΠΎ ΠΏΡΠΎΠΆΠΈΠ²Π°Π½ΠΈΡ ΡΠ΅ΠΌΠ΅ΠΉ ΠΈΠ»ΠΈΒ ΡΠ΄Π°Π»Π΅Π½Π½ΡΡ ΡΠ°Π±ΠΎΡΠ½ΠΈΠΊΠΎΠ². ΠΠ°Π»Π°Π½Ρ ΠΌΠ΅ΠΆΠ΄Ρ Π΄ΠΎΡΡΡΠΏΠΎΠΌ ΠΊΒ Π³ΠΎΡΠΎΠ΄ΡΠΊΠΎΠΉ ΡΡΠ΅ΡΠ΅ ΠΈΒ Π²ΠΎΠ·ΠΌΠΎΠΆΠ½ΠΎΡΡΡΡ ΡΠ΅Π΄ΠΈΠ½Π΅Π½ΠΈΡ Π²Β Π·Π°ΠΊΡΡΡΠΎΠΌ Π΄Π²ΠΎΡΠ΅ ΡΠ²Π»ΡΠ΅ΡΡΡ ΠΎΡΠ½ΠΎΠ²Π½ΡΠΌ Π΄ΡΠ°ΠΉΠ²Π΅ΡΠΎΠΌ ΡΠΏΡΠΎΡΠ° Π½Π°Β Π΄Π°Π½Π½ΡΡ Π»ΠΎΠΊΠ°ΡΠΈΡ.
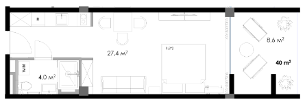
ΠΠ²Π°ΡΡΠΈΡΠ° ΠΏΠ»ΠΎΡΠ°Π΄ΡΡ 40Β ΠΌΒ² ΠΎΡΠ½ΠΎΡΠΈΡΡΡ ΠΊΒ ΠΊΠΎΠΌΠΏΠ°ΠΊΡΠ½ΠΎΠΌΡ ΡΠΎΡΠΌΠ°ΡΡ, ΠΊΠΎΡΠΎΡΡΠΉ Π΄Π΅ΠΌΠΎΠ½ΡΡΡΠΈΡΡΠ΅Ρ Π²ΡΡΠΎΠΊΡΡ Π»ΠΈΠΊΠ²ΠΈΠ΄Π½ΠΎΡΡΡ Π²Β ΡΠ΅Π³ΠΌΠ΅Π½ΡΠ΅ ΡΠ΅Π·ΠΎΠ½Π½ΠΎΠΉ Π°ΡΠ΅Π½Π΄Ρ. ΠΠΎΠ΄ΠΎΠ±Π½ΡΠΉ ΠΌΠ΅ΡΡΠ°ΠΆ ΠΎΠΏΡΠΈΠΌΠ°Π»Π΅Π½ Π΄Π»ΡΒ ΡΡΡΠΈΡΡΠΎΠ², ΠΈΡΡΡΠΈΡ ΡΡΡΠ½ΠΎΠ΅ ΠΆΠΈΠ»ΡΠ΅ Π²Π±Π»ΠΈΠ·ΠΈ ΠΌΠΎΡΡ, ΠΈΒ ΡΠ΄Π°Π»Π΅Π½Π½ΡΡ ΡΠ°Π±ΠΎΡΠ½ΠΈΠΊΠΎΠ², Π²ΡΠ±ΠΈΡΠ°ΡΡΠΈΡ ΠΠ°ΡΡΠΌΠΈ Π΄Π»ΡΒ Π΄Π»ΠΈΡΠ΅Π»ΡΠ½ΠΎΠ³ΠΎ ΠΏΡΠΎΠΆΠΈΠ²Π°Π½ΠΈΡ. ΠΒ ΡΡΠ»ΠΎΠ²ΠΈΡΡ ΠΊΠΎΠΌΠΏΠ»Π΅ΠΊΡΠ° Salibauri Hills ΡΡΡΠ΄ΠΈΡ ΠΈΠ»ΠΈΒ Π½Π΅Π±ΠΎΠ»ΡΡΠ°Ρ ΠΎΠ΄Π½ΠΎΠΊΠΎΠΌΠ½Π°ΡΠ½Π°Ρ ΠΊΠ²Π°ΡΡΠΈΡΠ° ΡΡΠ°Π½ΠΎΠ²ΠΈΡΡΡ ΡΡΡΠ΅ΠΊΡΠΈΠ²Π½ΡΠΌ ΠΈΠ½ΡΡΡΡΠΌΠ΅Π½ΡΠΎΠΌ Π΄Π»ΡΒ ΠΏΠ°ΡΡΠΈΠ²Π½ΠΎΠ³ΠΎ Π΄ΠΎΡ ΠΎΠ΄Π°. Π€ΡΠ½ΠΊΡΠΈΠΎΠ½Π°Π»ΡΠ½Π°Ρ ΠΏΠ»Π°Π½ΠΈΡΠΎΠ²ΠΊΠ° ΠΏΠΎΠ·Π²ΠΎΠ»ΡΠ΅Ρ ΡΠ°Π·ΠΌΠ΅ΡΡΠΈΡΡ Π²ΡΠ΅ Π½Π΅ΠΎΠ±Ρ ΠΎΠ΄ΠΈΠΌΠΎΠ΅ Π΄Π»ΡΒ ΠΊΠΎΠΌΡΠΎΡΡΠ½ΠΎΠ³ΠΎ ΠΎΡΠ΄ΡΡ Π° Π±Π΅Π·Β ΠΈΠ·Π±ΡΡΠΎΡΠ½ΠΎΠ³ΠΎ ΠΏΡΠΎΡΡΡΠ°Π½ΡΡΠ²Π°, ΡΡΠΎ ΡΠΏΡΠΎΡΠ°Π΅Ρ ΠΎΠ±ΡΠ»ΡΠΆΠΈΠ²Π°Π½ΠΈΠ΅ ΠΈΒ ΡΠ±ΠΎΡΠΊΡ.
ΠΠ΅ΡΡ Π½ΠΈΠΉ ΡΡΠ°ΠΆ 5 Π²Β Π½ΠΈΠ·ΠΊΠΎΡΡΠ°ΠΆΠ½ΠΎΠΌ ΠΏΡΠΎΠ΅ΠΊΡΠ΅ Π²ΠΎΡΠΏΡΠΈΠ½ΠΈΠΌΠ°Π΅ΡΡΡ ΠΊΠ°ΠΊΒ Π±ΠΎΠ»Π΅Π΅ ΡΡΠ°ΡΡΡΠ½ΠΎΠ΅ ΠΆΠΈΠ»ΡΠ΅ ΡΒ ΡΠ»Π΅ΠΌΠ΅Π½ΡΠ°ΠΌΠΈ ΠΏΠ΅Π½ΡΡ Π°ΡΡΠ°. ΠΠ³ΡΠ°Π½ΠΈΡΠ΅Π½Π½ΠΎΠ΅ ΠΊΠΎΠ»ΠΈΡΠ΅ΡΡΠ²ΠΎ ΠΊΠ²Π°ΡΡΠΈΡ Π½Π°Β ΡΡΠΎΠΌ ΡΡΠΎΠ²Π½Π΅ ΠΏΠΎΠ²ΡΡΠ°Π΅Ρ ΡΠΊΡΠΊΠ»ΡΠ·ΠΈΠ²Π½ΠΎΡΡΡ ΠΏΡΠ΅Π΄Π»ΠΎΠΆΠ΅Π½ΠΈΡ Π²Π½ΡΡΡΠΈ ΠΊΠΎΠΌΠΏΠ»Π΅ΠΊΡΠ°. ΠΒ ΡΠΎΡΠ΅ΡΠ°Π½ΠΈΠΈ ΡΒ ΠΈΠ½ΡΡΠ°ΡΡΡΡΠΊΡΡΡΠΎΠΉ Π±Π°ΡΡΠ΅ΠΉΠ½Π° ΠΈΒ ΡΠΏΠΎΡΡΠ·Π°Π»Π° ΡΡΠΎ ΡΠΎΠ·Π΄Π°Π΅Ρ ΠΏΡΠ΅ΠΌΠΈΠ°Π»ΡΠ½ΡΠΉ ΠΎΠΏΡΡ ΠΏΡΠΎΠΆΠΈΠ²Π°Π½ΠΈΡ Π²Β ΡΠΎΡΠΌΠ°ΡΠ΅ ΠΊΠΎΠΌΡΠΎΡΡ-ΠΏΠ»ΡΡ. ΠΠ½Π²Π΅ΡΡΠΈΡΠΈΠΎΠ½Π½Π°Ρ ΡΠ΅Π½Π½ΠΎΡΡΡ ΡΠ°ΠΊΠΈΡ ΠΊΠ²Π°ΡΡΠΈΡ ΠΏΠΎΠ΄Π΄Π΅ΡΠΆΠΈΠ²Π°Π΅ΡΡΡ Π΄Π΅ΡΠΈΡΠΈΡΠΎΠΌ Π²ΠΈΠ΄ΠΎΠ²ΡΡ Π»ΠΎΡΠΎΠ² Π²Β ΠΏΡΠΈΠ±ΡΠ΅ΠΆΠ½ΠΎΠΉ Π·ΠΎΠ½Π΅ Π’Π°ΠΌΠ°ΡΠΈ.
ΠΠ»ΡΒ ΠΈΠ½ΠΎΡΡΡΠ°Π½Π½ΡΡ ΠΈΠ½Π²Π΅ΡΡΠΎΡΠΎΠ² ΡΡΠΎΠΈΠΌΠΎΡΡΡ $80Β 000 ΡΠ²Π»ΡΠ΅ΡΡΡ Π²Ρ ΠΎΠ΄Π½ΡΠΌ Π±ΠΈΠ»Π΅ΡΠΎΠΌ Π½Π°Β ΡΡΠ½ΠΎΠΊ Π½Π΅Π΄Π²ΠΈΠΆΠΈΠΌΠΎΡΡΠΈ ΠΡΡΠ·ΠΈΠΈ ΡΒ ΠΏΡΠ°Π²ΠΎΠΌ ΡΠΎΠ±ΡΡΠ²Π΅Π½Π½ΠΎΡΡΠΈ Π±Π΅Π·Β ΠΎΠ³ΡΠ°Π½ΠΈΡΠ΅Π½ΠΈΠΉ. Π€ΠΎΡΠΌΠ°Ρ ΡΠΎΠ±ΡΡΠ²Π΅Π½Π½ΠΎΡΡΠΈ ΠΈΒ ΠΏΡΠΎΠ·ΡΠ°ΡΠ½ΠΎΡΡΡ ΡΠ΄Π΅Π»ΠΊΠΈ Π΄Π΅Π»Π°ΡΡ ΡΠ΅Π½Ρ ΠΏΠΎΠ½ΡΡΠ½ΠΎΠΉ ΠΈΒ ΠΏΡΠ΅Π΄ΡΠΊΠ°Π·ΡΠ΅ΠΌΠΎΠΉ Π΄Π»ΡΒ ΠΏΠΎΠΊΡΠΏΠ°ΡΠ΅Π»Π΅ΠΉ ΠΈΠ·-Π·Π° ΡΡΠ±Π΅ΠΆΠ°. ΠΠΈΠ·ΠΊΠΎΡΡΠ°ΠΆΠ½ΡΠΉ ΡΠΎΡΠΌΠ°Ρ Π²Β ΠΏΡΠΈΠ±ΡΠ΅ΠΆΠ½ΠΎΠΉ Π·ΠΎΠ½Π΅ ΡΡΠ°Π½ΠΎΠ²ΠΈΡΡΡ ΡΠ΅Π΄ΠΊΠΎΡΡΡΡ, ΡΡΠΎ ΠΏΠΎΠ΄Π΄Π΅ΡΠΆΠΈΠ²Π°Π΅Ρ ΡΡΠΎΠΈΠΌΠΎΡΡΡ ΡΠ°ΠΊΠΈΡ ΠΎΠ±ΡΠ΅ΠΊΡΠΎΠ² Π½Π°Β Π²ΡΡΠΎΠΊΠΎΠΌ ΡΡΠΎΠ²Π½Π΅. ΠΠΎΠΊΡΠΏΠΊΠ° Π½Π°Β ΡΡΠ°ΠΏΠ΅ ΡΠ΅Π°Π»ΠΈΠ·Π°ΡΠΈΠΈ ΠΏΠΎΠ·Π²ΠΎΠ»ΡΠ΅Ρ Π·Π°ΡΠΈΠΊΡΠΈΡΠΎΠ²Π°ΡΡ ΡΠ΅Π½Ρ Π΄ΠΎΒ ΠΏΠΎΠ»Π½ΠΎΠ³ΠΎ ΡΠΎΡΠΌΠΈΡΠΎΠ²Π°Π½ΠΈΡ ΠΈΠ½ΡΡΠ°ΡΡΡΡΠΊΡΡΡΡ ΡΠ°ΠΉΠΎΠ½Π°.
ΠΠΈΠ»ΠΎΠΉ ΠΊΠΎΠΌΠΏΠ»Π΅ΠΊΡ Salibauri Hills ΡΠ΅ΡΠ°Π΅Ρ Π·Π°Π΄Π°ΡΡ ΠΏΠΎΠΊΡΠΏΠ°ΡΠ΅Π»Π΅ΠΉ, ΠΈΡΡΡΠΈΡ Π½Π΅Π΄Π²ΠΈΠΆΠΈΠΌΠΎΡΡΡ ΡΒ ΠΈΠ½Π²Π΅ΡΡΠΈΡΠΈΠΎΠ½Π½ΡΠΌ ΠΏΠΎΡΠ΅Π½ΡΠΈΠ°Π»ΠΎΠΌ ΠΈΒ Π²ΠΎΠ·ΠΌΠΎΠΆΠ½ΠΎΡΡΡΡ Π»ΠΈΡΠ½ΠΎΠ³ΠΎ ΠΈΡΠΏΠΎΠ»ΡΠ·ΠΎΠ²Π°Π½ΠΈΡ. ΠΡΠΎΠ΅ΠΊΡ Π²ΡΠ±ΠΈΡΠ°Π΅ΡΡΡ Π·Π°Β ΡΡΡΡ ΡΠΎΡΠ΅ΡΠ°Π½ΠΈΡ Π½ΠΈΠ·ΠΊΠΎΡΡΠ°ΠΆΠ½ΠΎΠ³ΠΎ ΡΠΎΡΠΌΠ°ΡΠ°, ΡΠ°Π·Π²ΠΈΡΠΎΠΉ ΠΈΠ½ΡΡΠ°ΡΡΡΡΠΊΡΡΡΡ ΠΈΒ Π»ΠΎΠΊΠ°ΡΠΈΠΈ ΡΒ ΠΏΠ΅ΡΡΠΏΠ΅ΠΊΡΠΈΠ²Π°ΠΌΠΈ ΡΠ°Π·Π²ΠΈΡΠΈΡ. ΠΠ»ΡΒ ΠΈΠ½Π²Π΅ΡΡΠΎΡΠΎΠ² ΠΎΠ±ΡΠ΅ΠΊΡ ΠΈΠ½ΡΠ΅ΡΠ΅ΡΠ΅Π½ Π»ΠΈΠΊΠ²ΠΈΠ΄Π½ΠΎΡΡΡΡ ΡΡΡΠ΄ΠΈΠΉ ΠΈΒ ΠΎΠ΄Π½ΡΡΠ΅ΠΊ Π²Β Π°ΡΠ΅Π½Π΄Π½ΠΎΠΌ ΡΠ΅Π³ΠΌΠ΅Π½ΡΠ΅. ΠΠ»ΡΒ ΡΠ΅Π·ΠΈΠ΄Π΅Π½ΡΠΎΠ²Β β ΠΏΡΠΈΠ²Π°ΡΠ½ΠΎΡΡΡΡ ΠΈΒ ΠΊΠ°ΡΠ΅ΡΡΠ²ΠΎΠΌ ΡΡΠ΅Π΄Ρ, ΡΡΠΎ Π΄Π΅Π»Π°Π΅Ρ Π΅Π³ΠΎ ΡΠΈΠ»ΡΠ½ΡΠΌ ΠΏΡΠ΅Π΄Π»ΠΎΠΆΠ΅Π½ΠΈΠ΅ΠΌ Π½Π°Β ΡΡΠ½ΠΊΠ΅ ΠΠ°ΡΡΠΌΠΈ.


