Tekto Location находится в районе Махинджаури, который исторически считается одним из лучших климатических курортов Грузии. Удаленность от шумного центра Батуми при сохранении отличной транспортной доступности делает эту локацию приоритетной для ценителей тишины. Квартира в комплексе открывает доступ к благоустроенным пляжам с прозрачной водой и прогулочным тропам Ботанического сада. Развитие инфраструктуры северного направления города и благоустройство набережной подтверждают перспективность выбора данного объекта. Жилой комплекс формирует новую среду обитания, где каждый элемент — от расположения здания до внутренних сервисов — направлен на создание максимального комфорта для жителей и гостей.
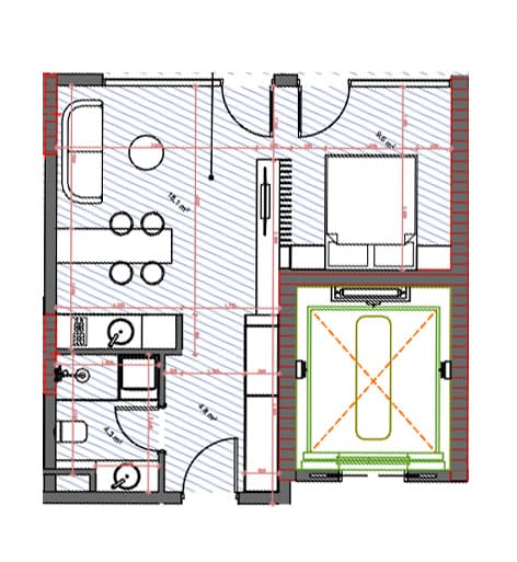
Метраж в 52.1 м² позволяет реализовать планировку с выделенной спальней, что существенно расширяет сценарии использования квартиры. Такое пространство подходит как для длительного сезонного отдыха, так и для комфортной работы в удаленном формате. В рамках Tekto Location средний метраж обеспечивает баланс между приватностью жилых зон и функциональностью кухни-гостиной.
Выбор 12 этажа является рациональным решением с точки зрения логистики и эксплуатации. Отсутствие зависимости от лифтов в часы пик и близость к наземному паркингу повышают удобство использования квартиры для постоянного проживания. В Tekto Location нижние этажи гармонично интегрированы в общую архитектурную концепцию, сохраняя высокий стандарт приватности.
Цена $32 042 за лот площадью 52.1 м² делает данное предложение привлекательным для формирования арендного бизнеса. Учитывая туристический потенциал района и наличие профессиональной управляющей компании, инвестиции в этот объект имеют понятные сроки окупаемости. Стадия строительства позволяет войти в проект на выгодных условиях до планового повышения цен.
Расположение рядом с главным туристическим магнитом региона гарантирует актуальность этого предложения в долгосрочной перспективе. Для уточнения технических деталей и ознакомления с актуальными условиями приобретения данной квартиры вы можете обратиться к нашим специалистам для получения информации.



