Современный подход к проектированию в Tekto Location позволил создать объект, отвечающий актуальным запросам на энергоэффективность и визуальный комфорт. Панорамное остекление квартиры обеспечивает обилие естественного света и визуальное расширение жилого пространства за счет окружающих пейзажей. Каскадная структура здания не только эстетична, но и функциональна, обеспечивая приватность открытых террас и зон отдыха. Квартира в этом премиальном комплексе является отражением современных стандартов качества жизни на побережье. Близость к морю и лесному массиву Ботанического сада создает уникальную атмосферу, которую сложно найти в урбанизированных кварталах центральной части города.
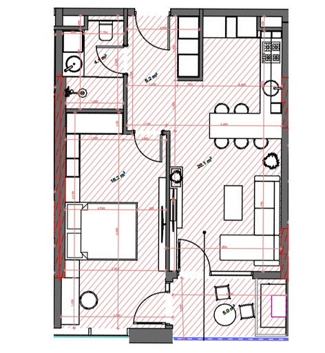
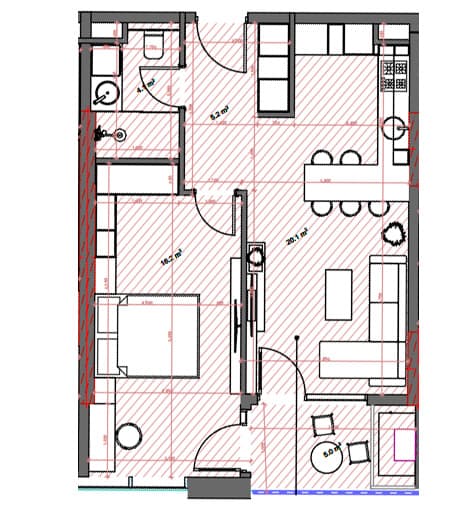
Квартира площадью 52.5 м² представляет собой универсальный актив, который легко адаптируется под разные запросы рынка. Она одинаково привлекательна для семейных пар и для тех, кто ищет качественное жилье для собственного пребывания в Батуми. Наличие дополнительного пространства повышает арендную ставку и делает объект ликвидным в любое время года.
Расположение квартиры на 13 этаже гарантирует оптимальный уровень естественного освещения в течение всего дня. Средние этажи позволяют в полной мере оценить преимущества панорамного остекления, не вызывая чувства чрезмерной высоты. Это создает уютную жилую среду, где вид из окна становится естественным продолжением интерьера в гармонии с природой Махинджаури.
Стоимость объекта в размере $32 288 отражает дефицит качественных земельных участков в северной части Батуми. Редкое сочетание морского побережья и реликтового леса Махинджаури формирует устойчивую добавочную стоимость. Покупка квартиры по этой цене является стратегическим шагом по сохранению капитала в активе с высоким потенциалом роста рыночной стоимости.
Сочетание современной каскадной архитектуры и уникального микроклимата делает проживание в этом комплексе исключительно комфортным. Проект Tekto Location подходит ценителям тишины и природной красоты, желающим сохранить доступ ко всем преимуществам развитой городской среды и качественного сервиса.


