The complex includes its own infrastructure with swimming pool, fitness center, parking, and 24/7 security. A management company handles operations while commercial premises occupy ground floors. Availability of own infrastructure increases complex attractiveness for rental and permanent residence, creating additional value for apartment owners seeking passive income opportunities.
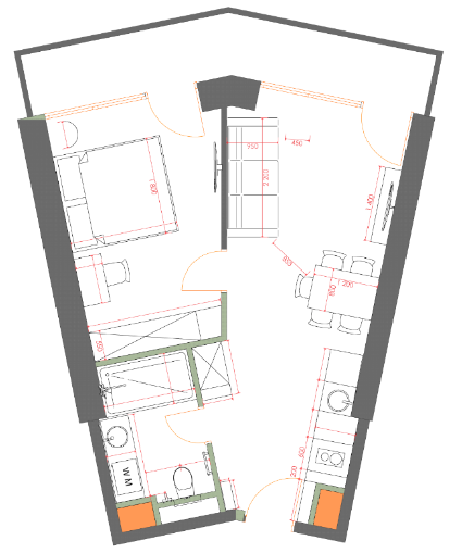
Apartments of 49.63 square meters combine practical living space with efficient investment characteristics. The medium format allows comfortable permanent residence while generating rental income during tourist seasons. Buyers appreciate this size for its ability to serve dual purposes within the completed residential complex by the sea.
The 40 floor placement ensures enhanced privacy and reduced street-level noise for residents. Higher apartments create separation from ground activity while offering expansive perspectives of the coastal area. This positioning appeals to tenants valuing quiet living environments within the developed infrastructure zone.
Pricing at $124,075 supports object liquidity through alignment with market expectations for completed sea-side properties. The deficit of first coastline proposals sustains value regardless of broader market conditions. This cost position enables flexible exit strategies for investors within the three to five year investment horizon.
7th Heaven Residence represents liquid real estate by the sea with H Group developer credentials. Compact apartment formats demonstrate high occupancy while sea-side deficit supports value retention. These factors combine to create a positioned offering within Batumi’s completed residential complex inventory.


