The residential object is situated on Zhuli Shartava Avenue in the rapidly developing Bagrationi district, balancing urban accessibility with coastal tranquility. Located just 950 meters from the sea, the complex offers residents easy access to waterfront promenades while avoiding direct noise from crowded tourist corridors. This specific address ensures strong liquidity and supports steady demand from long-term tenants and seasonal visitors. The neighborhood provides mature urban infrastructure alongside ongoing commercial expansion, making it a strategic choice for residential and investment purposes.
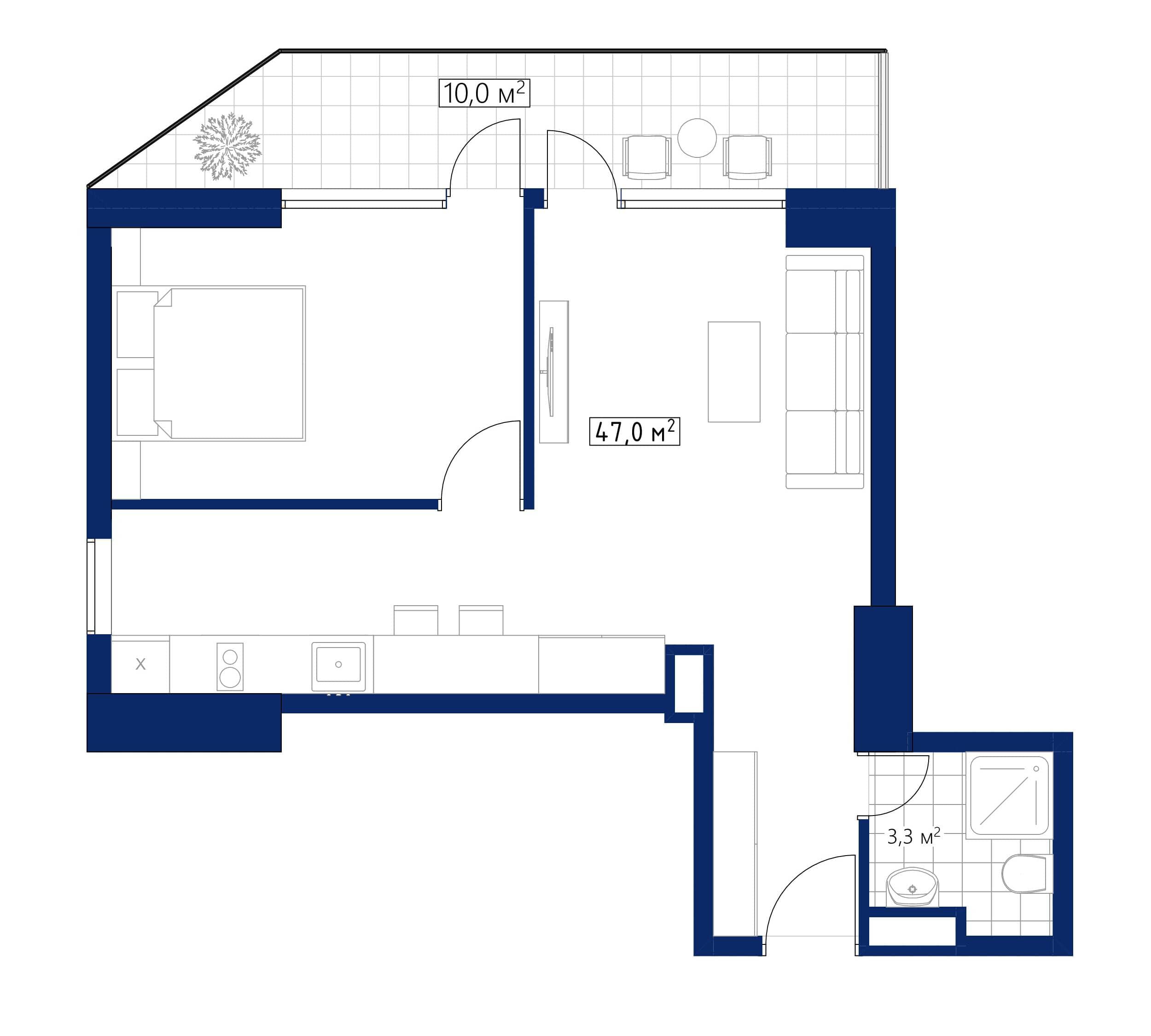
A footprint of 68.4 m² establishes a balanced distribution between private quarters and shared living zones, accommodating both relaxation and work activities. The dimensions allow for dedicated workspace integration, direct kitchen separation, and adequate storage without spatial compromise. This scale supports extended stays for remote professionals and relocating couples who require residential functionality. The layout structure aligns with contemporary lifestyle expectations that demand flexibility within a single-level arrangement.
An apartment situated on the 19 floor integrates seamlessly into the building’s operational flow, offering reliable climate control and reduced external interference. The elevation positions living spaces above ground-level transit routes, minimizing dust accumulation and acoustic vibration. This tier supports long-term tenancy by delivering steady comfort parameters and predictable maintenance cycles. Tenants appreciate the consistent balance between city engagement and residential tranquility throughout extended lease terms.
A financial commitment of $85,500 positions the asset within the comfort-plus segment, bridging affordability with business-format operational standards. The pricing reflects limited supply dynamics across three towers, which maintains secondary market stability and prevents oversaturation. Investors utilize this entry threshold to secure assets with verified management protocols and consistent occupancy projections. The valuation framework prioritizes sustainable capital growth and reliable income generation within Batumi’s expanding residential sector.
The residential format combines spatial functionality, elevated positioning, and structured financial entry to deliver consistent living and operational performance. Access to the district network and coastal zones enhances lifestyle convenience and rental viability. Potential occupants can review technical parameters and installment conditions with qualified representatives to determine optimal configuration matches.


