The architectural expression of the complex blends contemporary high-rise engineering with subtle oriental design motifs, creating a recognizable silhouette on the Batumi skyline. Extensive panoramic glazing across the facades maximizes natural daylight and frames unobstructed views of the Black Sea or the urban landscape. Every exterior element is engineered to enhance spatial perception while maintaining strict thermal and acoustic performance standards. This focus on architectural precision translates directly into long-term market competitiveness.
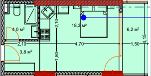
A compact layout of 29.3 m² optimizes spatial distribution by eliminating transitional zones and prioritizing functional living areas. The efficient footprint reduces utility expenses while maintaining comfortable circulation for solo occupants or digital nomads. This configuration aligns with high-frequency rental demand, enabling faster turnover and streamlined maintenance. The design ensures that every square meter serves a practical purpose without compromising daily usability or storage requirements.
Apartments located on the 39 floor represent the architectural pinnacle of the vertical community, offering superior spatial perception and exclusive environmental parameters. The height advantage captures extended daylight cycles, enhances seasonal temperature regulation, and provides commanding views of regional landmarks. This elevation aligns with premium rental expectations, supporting higher market positioning and extended tenant retention. Buyers utilize this tier to secure long-term asset differentiation within a competitive resort sector.
A financial commitment of $43,950 positions the asset within the comfort-plus segment, bridging affordability with business-format operational standards. The pricing reflects limited supply dynamics across three towers, which maintains secondary market stability and prevents oversaturation. Investors utilize this entry threshold to secure assets with verified management protocols and consistent occupancy projections. The valuation framework prioritizes sustainable capital growth and reliable income generation within Batumi’s expanding residential sector.
The property delivers consistent value through limited residential volume, high-performance architectural elements, and proximity to coastal and commercial infrastructure. Management integration and controlled access maintain service standards that appeal to long-term occupants and rental operators. Individuals interested in the specific operational metrics and availability schedules may request detailed documentation from advisory specialists.


