Geuz Towers is positioned as a business-class project that fills a specific niche in the regional real estate market: premium housing on the first line with full hotel infrastructure. While many new buildings in the area offer basic living conditions, this complex provides a 5-star service level that includes a SPA, fitness center, and professional management. This positioning attracts a diverse audience, from digital nomads and expats to tourists seeking high-end seasonal rentals. The ready-to-use status of the apartments, combined with the project’s seaside location, ensures that the property remains a highly liquid asset. It caters to those who prioritize quality of life and a clear logic of demand in the competitive Black Sea coast market.
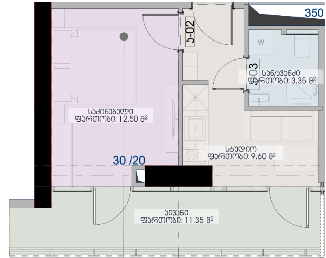
This space of 36.8 m² is designed for maximum functional efficiency within a premium resort setting. The turnkey finishing allows for immediate use, making it an ideal choice for those looking for a manageable seaside residence that benefits from the full range of 5-star hotel services.
Located on the 9 floor, this apartment provides quick and easy access to the complex’s extensive infrastructure, including the ground-floor commercial premises and the beach. It is a practical choice for those who prefer to be closer to the internal gardens and playgrounds.
The price of $98,256 reflects the premium nature of the complex and its exceptional first-line location. For an area of 36.8 m², this cost includes high-quality turnkey finishing and full access to 5-star services, making it a competitive investment in the Batumi region.
Choosing a residence in this 45-story project provides access to a lifestyle centered on wellness and coastal comfort. With 5-star services and turnkey finishing, the apartment is ready for your specific needs. Please feel free to inquire for additional details regarding available units and terms.


