The engineering methodology applied to Mardi Hills focuses on delivering consistent thermal regulation, optimized sound insulation, and proportional room dimensions across all available residential typologies. These technical specifications guarantee that indoor environments remain suitable for continuous habitation throughout seasonal climate variations. The project prioritizes practical building physics and standardized utility routing, which directly contributes to predictable energy consumption and long-term operational stability for residents.
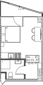
A residential unit measuring 25.95 m² provides a highly optimized spatial configuration that concentrates essential living zones into a single cohesive layout, effectively minimizing internal transit distance. Such compact proportions suit individuals who prioritize operational efficiency and straightforward daily routines. The reduced footprint ensures manageable maintenance requirements while preserving adequate circulation space for standard furniture arrangements.
Residing on the 6 level effectively dampens ground-level mechanical noise while avoiding the structural resonance characteristics frequently observed at maximum building elevations. The intermediate height generates a natural acoustic buffer that preserves conversational clarity and indoor tranquility during peak activity periods. This vertical placement delivers a stable auditory environment that facilitates concentrated work and uninterrupted rest cycles.
A $64,950 investment establishes a stable residential foundation within a structurally engineered building situated in a continuously developed Batumi zone. The financial commitment correlates directly with predictable utility consumption metrics and standardized maintenance cycles typical of modern housing complexes. Purchasers can assess this valuation through a framework emphasizing long-term operational efficiency and structural reliability.
The positioning within a fully connected urban sector, combined with verified building specifications and straightforward acquisition procedures, generates a reliable housing option suitable for permanent settlement or seasonal utilization. Residents consistently benefit from developed municipal infrastructure and uninterrupted access to coastal recreational zones. Interested buyers may clarify floor plan specifications and verify proximity indices to finalize property assessments.



