The liquidity of properties in Montemar Gonio is supported by a professional management company that handles all aspects of maintenance and rental operations. This service-oriented model is essential for investors who prefer a passive income strategy, as the management team takes on the tasks of marketing, guest relations, and technical upkeep. In a market where high-quality service directly influences the occupancy rate and rental yield, such a management structure becomes a decisive factor for value growth. The developer’s reputation for creating functional and attractive objects further strengthens the project’s position as a reliable asset in the premium segment of the market.
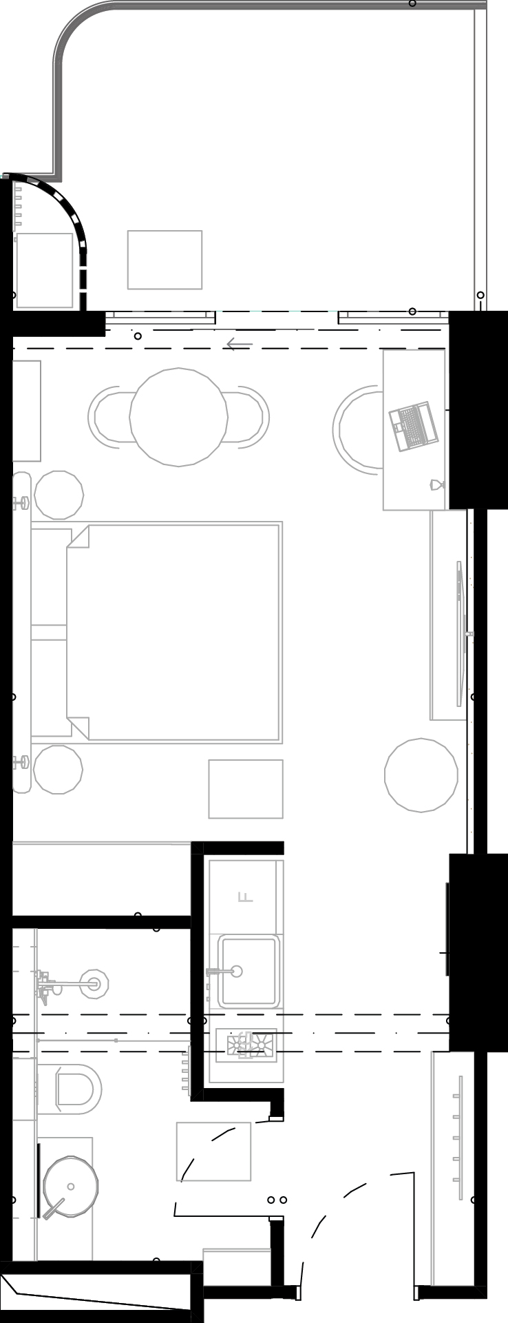
This studio with an area of 38.2 m² represents a highly efficient investment format tailored for the Gonio rental market. The layout is optimized to provide full functionality within a compact space, making it ideal for short-term tourist stays. Such units are in high demand due to their accessibility and the clean ecological status of the district.
Located on the 9 floor, this apartment represents the classic middle-tier positioning that appeals to a wide range of tenants and buyers. This level captures the essence of Montemar Gonio’s architectural concept, providing a harmonious vantage point that isn’t too high but offers a significant improvement in privacy compared to the lower floors.
Setting the price at $109,443 for a unit on the 9 floor highlights the project’s focus on view characteristics and architectural excellence. This is a competitive offer for the Gonio region, considering the mid-rise format and low population density of the area. The durability of the materials used ensures that the property will maintain its premium status for years to come.
Montemar Gonio is a balanced choice for those seeking premium quality in the most ecologically clean part of the Batumi coast. The combination of sea, mountains, and modern infrastructure creates a unique environment for both vacations and investment. You can request a detailed consultation to review the remaining layouts and available floors.

