This apartment is part of the Next Collection residential complex, situated in the promising Makhinjauri area of Batumi. The project offers a rare combination of premium-class standards and direct access to the Black Sea coastline. Located just 50 meters from the water, the building provides an authentic seaside living experience. The surrounding infrastructure supports both comfortable residence and high-yield tourist rentals, making it a strategic asset in the city’s real estate market.
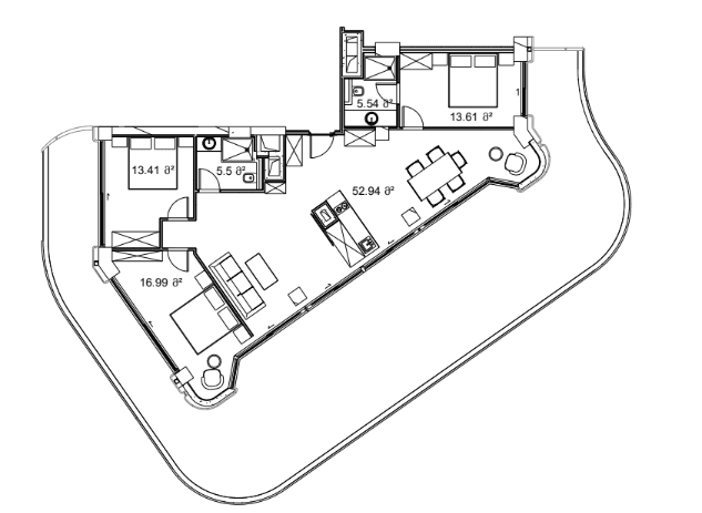
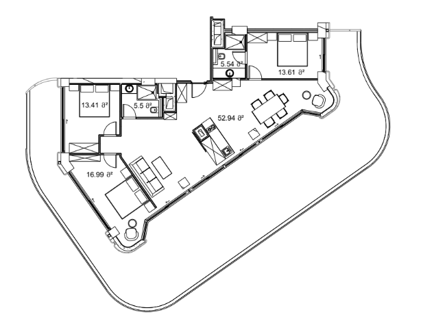
With 229.74 m² of living space, this apartment is perfectly suited for long-term rental agreements with expats or families. The size allows for a fully equipped home environment, including dedicated workspaces or guest rooms. Such properties are scarce in the first-line segment, increasing their exclusivity. Owners can command higher rental rates due to the premium nature of the spacious layout.
Positioned on the 10 floor, this apartment enjoys a balanced view that combines sea glimpses with city context. This mid-level elevation avoids the noise of the street while remaining connected to the ground activity. It represents the golden mean for those who want height without being too high up. The perspective allows for good natural light without the intense exposure of the top floors.
The current price of $643,244 represents an entry advantage before the project’s completion in 2026. Historically, real estate values increase as construction progresses and infrastructure is finalized. Securing a unit at this stage allows buyers to lock in the current rate. This timing is strategic for maximizing the return on investment upon handover.
Ultimately, this apartment offers a seamless seaside living experience with modern amenities. Whether used for vacation or rental, it delivers on the promise of coastal luxury. The project’s completion in 2026 marks the beginning of a new premium residential era. It is a logical choice for those valuing proximity to the water and professional service.


