With a completion date set for 2026, the project is currently in the active implementation stage. Entering the project before construction completion traditionally provides an advantage on the entry price. The ongoing construction progress allows investors to secure assets at current market rates before the final handover. This timing is strategic for those looking to maximize capital appreciation potential during the development phase.
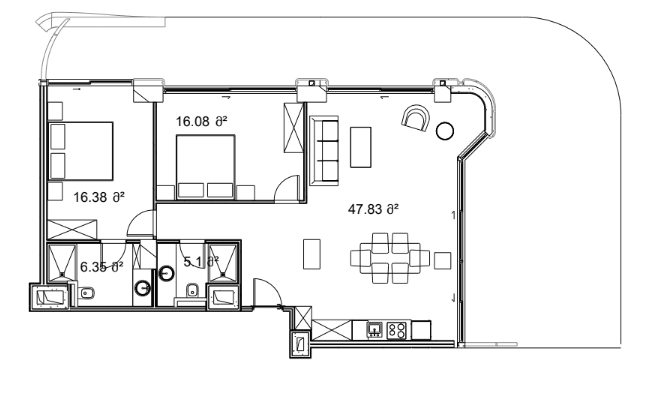
The substantial area of 162.52 m² makes this unit an excellent candidate for permanent relocation to Batumi. It offers enough space to create a personalized home environment with all necessary amenities. The proximity to the sea and botanical garden adds to the quality of life in such a spacious setting. This format serves as a primary residence that does not compromise on comfort or location.
The apartment on the 3 floor provides a unique perspective focused on the surrounding greenery and landscape. Residents can enjoy views of the botanical gardens and landscaped areas directly from their windows. This connection to nature creates a tranquil atmosphere within the home. It is a preferred choice for those who value a quiet, grounded living environment over panoramic heights.
With a price of $354,549, the apartment is accessible through an interest-free installment plan for 36 months. This payment structure allows investors to manage cash flow effectively while the asset appreciates. A 20% down payment secures the unit, spreading the remaining cost over three years. This financial flexibility makes the project attainable for a wider range of international buyers.
The residential complex provides a self-contained environment with pools, spas, and entertainment facilities. This infrastructure supports a high quality of life without needing to leave the premises. It enhances the rental appeal by offering resort-style amenities to guests. The apartment is part of a larger ecosystem designed for comfort and leisure.


