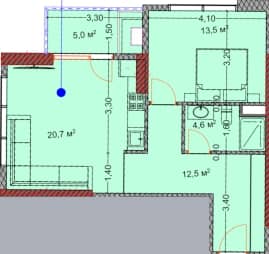
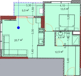
1-bedroom apartment, 56 m², 9 floor in "OKTO Art House"
Batumi, Airport, 73-75 Angisa I Lane

About apartment
Article
13,543,046Numeration
927Floor
9Roominess
1-room
Price
$77,280Price / m²
$1,380Total area
56 m²
About project
“OKTO Art House”

73-75 Angisa I Lane
2 main_info.buildings_count.building, 475 apt.
Studios
$36,9601-room apartments
$56,875Cost per m²
$1,200Floors
35Elevator
yes
Number of elevators
4Features
pool, gymDistance to the sea
600 mDistrict
Airport
Map
Installment without price increase
| Down payment, $ | Monthly payment: | Duration, month |
|---|---|---|
| 20% - $15,456 | $1,546 | up to 40 months |
| 15% - $11,592 | $1,460 | up to 45 months |

