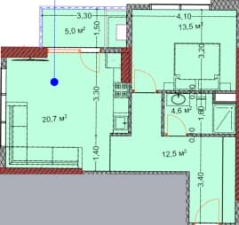
1-комнатная квартира, 56 м², 9 этаж в ЖК "OKTO Art House"
Батуми, Аэропорт, переулок Ангиса I, 73-75

О квартире
Артикул
13,543,046Номер
927Этаж
9Комнатность
1-комнатная
Цена
$77,280Цена / м²
$1,380Общая площадь
56 м²
Студии
$36,9601-комнатные
$56,875Стоимость за м²
$1,200Этажей
35Лифт
да
Лифтов
4Дополнительно
бассейн, спортзалРасстояние до моря
600 м.Район
Аэропорт
На карте
Рассрочка без удорожания
| Первый взнос | Ежемесячный платеж | Срок |
|---|---|---|
| 20% - $15,456 | $1,546 | 40 мес. |
| 15% - $11,592 | $1,460 | 45 мес. |


