The apartment in question is located in the highly investment-attractive Radisson Residences project, whose concept is based on the deep integration of private living and premium hotel infrastructure. The territory of the complex provides for the creation of a landscaped private beach, a SPA center, outdoor and indoor swimming pools, as well as modern fitness spaces. The location in the Airport area allows residents to enjoy a relaxing holiday by the sea while maintaining the ability to quickly reach key business and entertainment facilities of the Batumi resort.
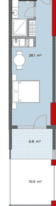
A medium-format apartment covering 50.14 m² offers an optimal balance between exceptional investment attractiveness and personal comfort. Such footage is ideally suited for the long-term residence of couples or corporate expats who require a dedicated zone for relaxation and remote work. The presence of a full-fledged living space significantly increases interest in the property from long-term tenants who value the status and comprehensive services of international hotels.
Choosing the 14 floor is logically justified for those seeking a precise balance between the privacy of living and the speed of access to premium hotel services. This level of placement wonderfully isolates the living space from the typical bustle of commercial levels, but it does not unnecessarily lengthen the time required to descend to the lobby or the sea. Under the conditions of premium service, this height ensures a tranquil atmosphere that is ideal for a prolonged stay or productive remote work in resort Batumi.
An investment amounting to $186,521 guarantees the legal purity and absolute transparency of management that are inherently characteristic of properties under the auspices of global brands. The declared cost tightly correlates with the high expenses incurred by the developer to comply with international construction and finishing regulations. For a foreign investor, this exact price signifies profound confidence in the quality of the finished product and the total absence of hidden risks when registering the real estate in full ownership.
This option is ideally suited for those who demand highly stable construction quality and wish to have daily access to premium hotel services. The private beach, expansive SPA infrastructure, and international-level management create a truly flawless environment for living by the sea. You can clarify current purchasing conditions and specific layout features by contacting the sales department specialists.


