The project is in the final stage of implementation currently. Completion is scheduled for the specified built date soon. This shortens the investment horizon for buyers significantly. The object can be put into operation immediately after documents. Residential complex X2 Home is a rational choice for buyers. Premium low-rise format in a developing resort area awaits. Project closes the need for spacious housing for living. Limited supply in the location supports asset liquidity strongly. Real estate investment with growth potential is the goal. Buying housing for a family by the sea is possible. Final stage of implementation ensures quick access to property.
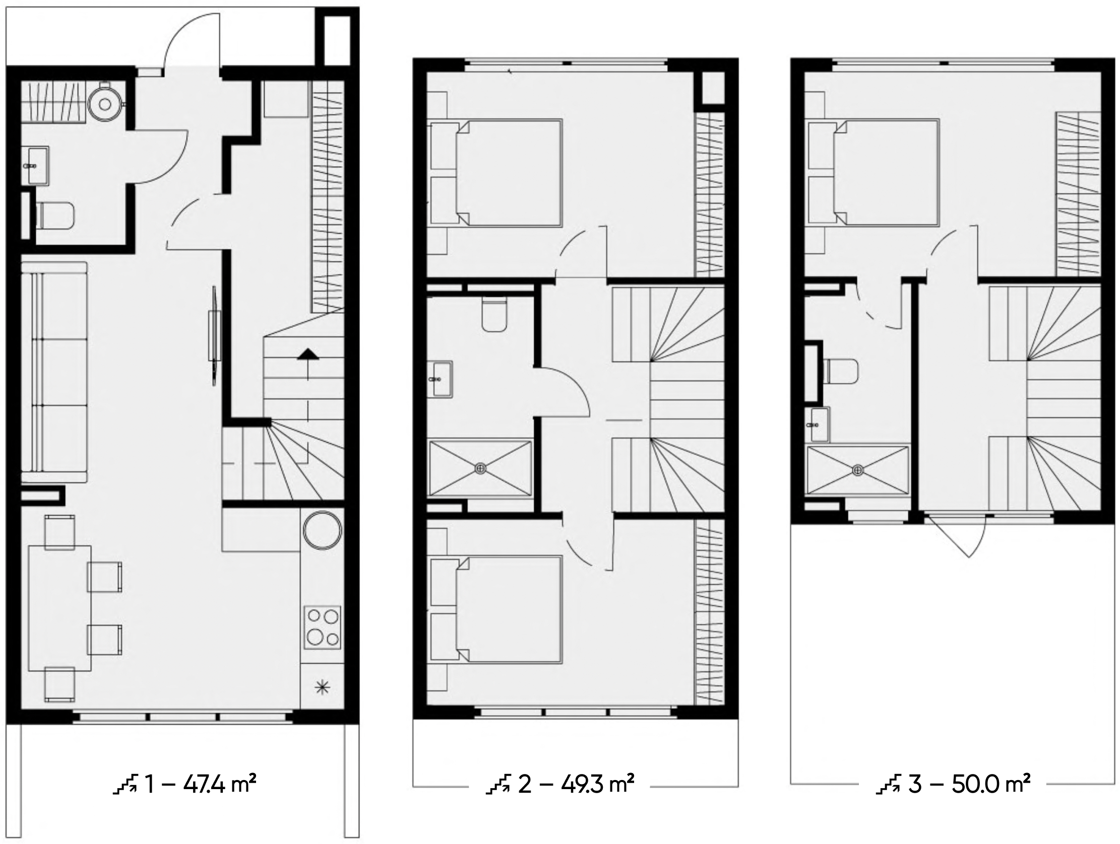
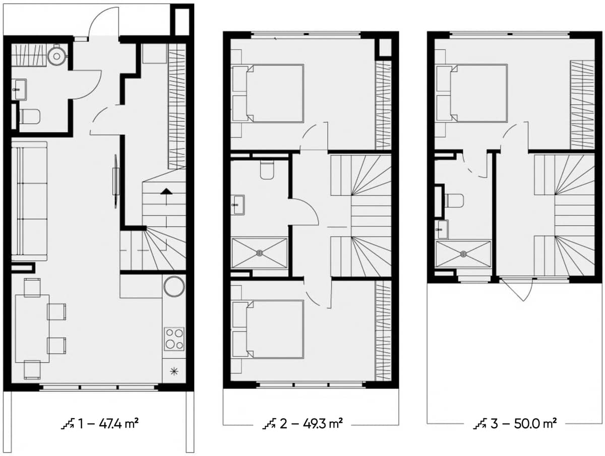
Expansive area of 146.7 m² defines maximum comfort standards. Large layouts cater to groups seeking privacy and space. Group traveler rentals benefit from multiple rooms available. Premium segment investors target this specific property format. High square footage commands a premium in rental market. Spacious housing meets needs of buyers seeking luxury. Private territory ensures security and exclusivity for residents. Comprehensive infrastructure supports high-end living requirements. Four-room layout ensures enough space for family living.
Residence at 1 floor offers practical urban connectivity. Easy entry benefits those with mobility considerations. Private townhouse format meets needs of buyers. Comprehensive infrastructure complements the exclusive residential environment. Management company handles operational tasks for owners. Passive income buyers count on seasonal rental. Installment plan without price increase aids acquisition. Project is implemented in one stage consistently. Easy entry benefits those with mobility considerations.
Investment of $278,730 secures freehold ownership status fully. Purchase is available for foreign citizens significantly. This expands the pool of potential investors. Installment terms allow a down payment of thirty. Remaining amount divided into nine monthly payments. No price increase during the construction period. Completion date shortens the investment horizon for. Object can be put into operation immediately. Purchase is available for foreign citizens significantly.
Final assessment highlights the rational choice for buyers. Premium low-rise format in a developing resort area. Project closes the need for spacious housing. Limited supply in the location supports asset. Real estate investment with growth potential is goal. Buying housing for a family by the sea. Residential complex X2 Home is a rational choice. If your goal is real estate investment.


