Жилой комплекс 7th Heaven Residence расположен в районе Аэропорт, на первой береговой линии. Расстояние до моря составляет всего 60 метров, что обеспечивает прямой доступ к побережью и формирует высокий спрос на аренду. Проект реализован застройщиком H Group, известным своими качественными объектами в Батуми, такими как Batumi Palace. Завершение строительства в 2024 году позволяет сразу начать эксплуатацию недвижимости, минимизируя риски ожидания.
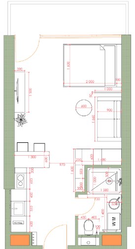
Площадь около 34.74 м² соответствует логике туристического рынка, где востребованы бюджетные варианты размещения. Компактное жилье удобно для транзитных гостей и специалистов, работающих вблизи аэропорта. Низкий порог входа позволяет диверсифицировать вложения, приобретая несколько объектов. Высокая ликвидность таких форматов обеспечивает быстрый оборот капитала.
Расположение квартиры на 9 этаже обеспечивает быстрый доступ к выходам из комплекса и паркингу. Это удобно для тех, кто ценит мобильность и не хочет зависеть от лифтов. Нижние уровни часто выбирают арендаторы с детьми или пожилые люди. Такой этаж упрощает логистику заселения и выезда для краткосрочных гостей.
При цене $62 532 квартира окупается за счёт высокого спроса на аренду в туристическом районе. Доходность формируется благодаря близости к морю и аэропорту, обеспечивающим поток гостей. Стоимость входа в проект позволяет быстро начать получение пассивного дохода. Баланс цены и потенциала аренды делает объект интересным для инвесторов.
Характеристики квартиры и преимущества комплекса делают её сильным предложением на рынке Батуми. Сочетание цены, локации и готовности объекта формирует высокую ценность актива. Для уточнения деталей планировки или условий рассрочки рекомендуется обратиться к менеджеру. Объект готов к рассмотрению для покупки или аренды.


