Этот объект недвижимости в Ambassadori Island спроектирован для тех, кто ищет баланс между приватностью островов и доступностью городской инфраструктуры. Проект предлагает эксклюзивный стиль жизни с доступом к SPA-центрам мирового уровня, торговым галереям и бутикам прямо на территории архипелага. Закрытый формат комплекса и многоуровневая система охраны обеспечивают полную автономность и спокойствие резидентов. Владение жильем здесь подчеркивает статус собственника и его приверженность качеству, поскольку каждый элемент проекта — от гидротехнических решений до ландшафтного дизайна — выполнен по высшим стандартам девелопмента.
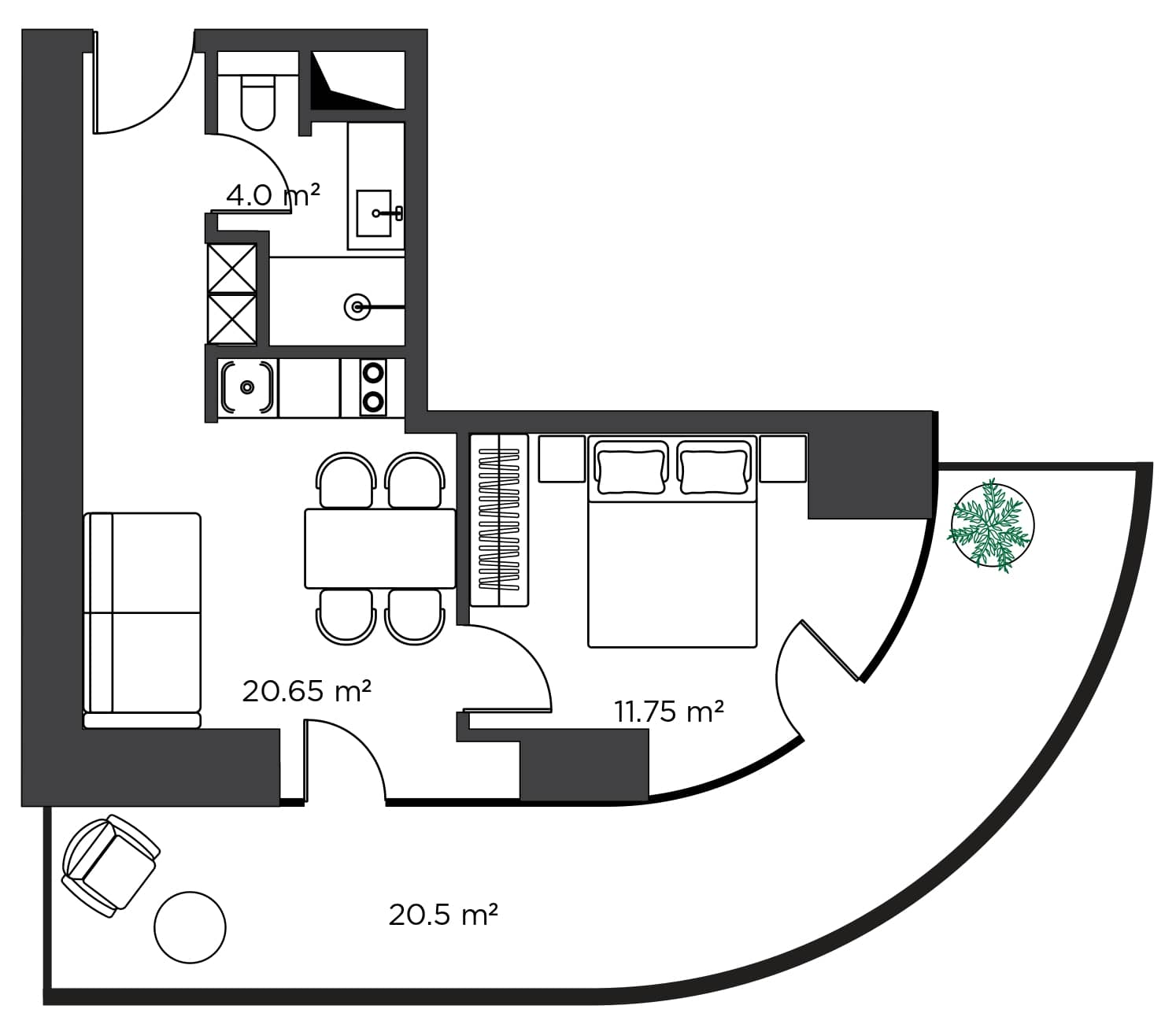
Располагая площадью 56.9 м², владельцы получают просторное жилое пространство, которое полностью соответствует статусу премиального ЖК. Такой размер позволяет реализовать современные дизайнерские решения с акцентом на панорамные виды Батуми. Квартиры среднего метража считаются «золотой серединой» для владения в Ambassadori Island, так как они сочетают в себе высокую ликвидность и комфорт полноценного жилья.
Находясь на 21 этаже, владельцы получают сбалансированное сочетание панорамного вида на Батуми и ощущения защищенности внутри комплекса. Средние уровни Ambassadori Island считаются наиболее универсальными, так как они предлагают отличный обзор на акваторию моря и архитектуру островов. Такое расположение обеспечивает комфортный уровень освещенности и приватности, скрывая жилое пространство от шума общественных зон.
Цена квартиры $210 535 обоснована уникальностью инженерного решения проекта, не имеющего аналогов на Черноморском побережье. Инвестируя в данный актив, вы приобретаете долю в первом искусственном архипелаге Грузии, что гарантирует защиту от рыночной волатильности. Дефицит подобной недвижимости на первой линии Батуми обеспечивает высокий потенциал капитализации в долгосрочной перспективе.
Уникальность проекта на намывных территориях превращает каждую квартиру здесь в редкий актив на рынке Грузии. Постепенное освоение островов и запуск инфраструктурных узлов обеспечивают устойчивый рост цен на недвижимость в комплексе. Для сравнения текущих предложений и подбора оптимального лота под ваши цели доступна подробная информационная поддержка.



