Эта квартира расположена в Ambassadori Island — первом в Грузии проекте намывного архипелага, который меняет архитектурный ландшафт Батуми. Речь идет об уникальном объекте, объединяющем жилую и курортную среду на двух искусственных островах и полуострове в северной части побережья. Выбор недвижимости здесь обусловлен стремлением владеть эксклюзивным активом в автономной экосистеме премиального уровня. Проект от Ambassadori Group выделяется на фоне плотной городской застройки, предлагая жителям доступ к пятизвездочному сервису и закрытой инфраструктуре, что делает каждый лот в этом комплексе стратегически ценным приобретением.
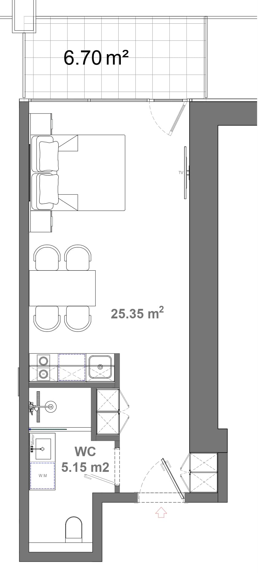
Площадь в 37.2 м² в данном жилом комплексе спланирована с учетом эргономики, чтобы обеспечить комфортное проживание на первой линии моря. Подобный метраж позволяет эффективно использовать пространство, объединяя зону отдыха и панорамное остекление. В условиях острова такие студии становятся наиболее ликвидными активами, обеспечивая владельцу быстрый возврат капитала за счет высокого спроса в сегменте.
Находясь на 24 этаже, владельцы получают сбалансированное сочетание панорамного вида на Батуми и ощущения защищенности внутри комплекса. Средние уровни Ambassadori Island считаются наиболее универсальными, так как они предлагают отличный обзор на акваторию моря и архитектуру островов. Такое расположение обеспечивает комфортный уровень освещенности и приватности, скрывая жилое пространство от шума общественных зон.
При цене $153 400 квартира площадью 37.2 м² является ликвидным инструментом для получения пассивного дохода от аренды. Высокий спрос со стороны иностранных туристов и бизнеса обеспечивается за счет интеграции отельного сервиса в жилой сектор. Эксклюзивный статус Ambassadori Island как новой архитектурной доминанты гарантирует стабильную востребованность лота среди аудитории с высоким уровнем дохода.
Владение жильем в Ambassadori Island — это возможность войти в наиболее амбициозный проект Батуми, который станет визитной карточкой города. Автономность архипелага и профессиональное управление недвижимостью создают условия для долгосрочного владения активом. Рекомендуется уточнить актуальные параметры объекта и ознакомиться с деталями реализации проекта через консультацию.


