Объект недвижимости в ЖК Calligraphy Towers соответствует классу комфорт-плюс с элементами бизнес-формата, что отражается в архитектурном решении и планировочных решениях. Фасады корпусов выполнены с учётом восточных мотивов и оснащены панорамным остеклением, открывающим виды на море и городской пейзаж. Переменная этажность до 45 уровней формирует узнаваемый силуэт района Багратиони и обеспечивает естественное освещение жилых пространств. Интеграция выразительной архитектуры с функциональными системами комплекса повышает долгосрочную привлекательность жилья для инвесторов и резидентов.
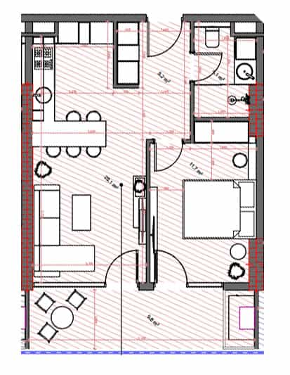
Площадь 56.2 м² обеспечивает достаточный объём пространства для организации зон хранения и раздельного зонирования. Это делает квартиру привлекательной для резидентов, планирующих длительное пребывание в курортном городе без потери комфорта. Удалённость на 950 метров от моря исключает избыточную влажность внутри помещений, сохраняя качество отделочных материалов. Средний метраж демонстрирует стабильную ликвидность на вторичном рынке благодаря универсальному спросу и сбалансированным эксплуатационным затратам.
Уровень 28 этажа обеспечивает равномерное распределение естественного света в течение дня, что снижает затраты на искусственное освещение. Квартиры на данной высоте менее подвержены ветровым нагрузкам, сохраняя стабильный микроклимат в условиях курортного сезона. Близость к средним ярусам трёх корпусов формирует ощущение принадлежности к камерному сообществу без потери приватности. Подобная позиция усиливает эксплуатационную надёжность жилья и поддерживает предсказуемый арендный поток.
Уровень стоимости $75 870 обоснован близостью к морю на расстоянии 950 метров и наличием закрытой территории с профессиональным управлением. Подобный баланс цены и характеристик проекта обеспечивает устойчивый арендный спрос в условиях дефицита качественного жилья в Батуми. Рассрочка без удорожания позволяет равномерно распределить финансовую нагрузку, сохраняя доступность объекта для международных инвесторов. Ценовой параметр напрямую коррелирует с ликвидностью и скоростью выхода на пассивный доход.
Формат жилья в ЖК Calligraphy Towers объединяет инвестиционную надёжность с качеством курортной жизни в динамичном районе. Ограниченное число резиденций, панорамное остекление и закрытая территория формируют камерную атмосферу. Гибкая рассрочка без удорожания расширяет возможности приобретения для иностранных граждан. Узнать точные параметры выбранного объекта и сроки сдачи корпусов можно в ходе персональной консультации.


