Параметры квартиры
О квартире
Жилой комплекс Compact House в Батуми — это современный проект, предлагающий комфортные условия для проживания и инвестирования. Комплекс расположен в тихом районе города, всего в 1900 метрах от моря, что делает его привлекательным для тех, кто ценит близость к пляжу и развитую инфраструктуру.
Описание проекта: Compact House представляет собой шестиподъездный дом с разнообразными планировками, включая студии, одно-, двух- и трехкомнатные апартаменты. Все квартиры оснащены современной мебелью и техникой, обеспечивая высокий уровень комфорта. Здания имеют современные архитектурные решения, большие окна, что позволяет наслаждаться естественным освещением и панорамными видами на город и море.
Инфраструктура:
- Консьерж-сервис
- Супермаркет
- Обустроенная терраса
- Благоустроенный двор
- Коммерческие помещения
- Круглосуточная охрана
- Зоны отдыха на крыше
- Фитнес-залы
- Игровые комнаты и зоны для барбекю
Транспортная доступность: В непосредственной близости от комплекса находятся остановки общественного транспорта, что обеспечивает удобное сообщение с другими районами города и позволяет легко добраться до центрального автовокзала и железнодорожной станции. Международный аэропорт также находится всего в нескольких километрах от комплекса, обеспечивая удобство для частых путешественников.
Преимущества:
- Высокий уровень безопасности
- Парковочные места
- Транспортная доступность
- Просторные планировки и высокие потолки
- Беспроцентная рассрочка и гибкие условия покупки
Compact House предлагает все необходимое для комфортной жизни и успешного инвестирования в недвижимость в Батуми. Проект планируется к завершению в 2025 году, и уже сейчас доступно множество выгодных предложений для приобретения квартир по ценам ниже, чем у застройщика.
Этот жилой комплекс идеально подходит для тех, кто ищет уютное место для постоянного проживания или сезонного отдыха в одном из самых быстроразвивающихся городов на побережье Черного моря.
О жилом комплексе
- Студии:
- от $ 94 793
- 1-комнатные:
- от $ 46 726
- 2-комнатные:
- от $ 50 240
- 3-комнатные:
- от $ 90 397
- Стоимость за м²:
- от $ 800 м²
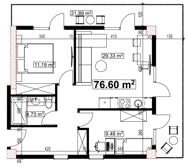
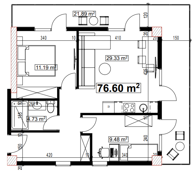
- Квартиры:
- от 52 до 101.57 м²
- Этажей:
- 6
- Лифт:
- да
- Технология:
- монолит
- Название на русском:
- компакт хаус
- Окончание строительства:
- 1 марта 2025 г.
- Расстояние до моря:
- 1850 м.












