Масштабный проект Geuz Towers в Кобулети выделяется своей этажностью и продуманным зонированием территории. Две 45-этажные башни предлагают широкий выбор планировочных решений с панорамными видами, которые остаются неизменными благодаря расположению на первой линии. Единый стилобат комплекса служит базой для размещения коммерческой и социальной инфраструктуры, создавая удобную платформу для жизни и бизнеса. Использование современных фасадных решений и качественных строительных материалов подчеркивает статус объекта. Такой архитектурный подход позволяет рационально использовать прибрежную территорию, предоставляя резидентам максимум открытых пространств для отдыха, включая бассейны и террасы на крыше.
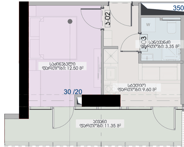
Квартира площадью 36.8 м² представляет собой один из самых ликвидных форматов в Geuz Towers. Подобный метраж идеально подходит для краткосрочной сезонной аренды, пользуясь стабильным спросом у туристов на первой линии Кобулети. Компактное пространство в сочетании с премиальной отделкой под ключ обеспечивает высокую доходность на квадратный метр.
Выбор 32 этажа в 45-этажных башнях Geuz Towers — это инвестиция в исключительность. На такой высоте панорамное остекление превращает пейзаж в часть интерьера, делая каждый закат незабываемым. Высокие этажи всегда обладают повышенной ликвидностью на рынке элитного жилья, привлекая покупателей и арендаторов, стремящихся к максимальному уровню комфорта и эстетики у моря.
Сумма $118 864 за данный лот включает в себя право пользования всеми привилегиями комплекса: от закрытого пляжа до SPA и фитнес-центра. Инвестируя такую стоимость в Geuz Towers, вы получаете объект в 50 метрах от моря с профессиональным управлением. Наличие собственной управляющей компании гарантирует сохранность актива и его востребованность на рынке аренды по премиальным ставкам.
Выбор апартаментов в этом комплексе гарантирует жизнь в тихом курортном районе с чистым морем и быстрым доступом к инфраструктуре Батуми. Проект Geuz Towers успешно решает задачу создания комфортной среды для отдыха и инвестиций в 50 метрах от пляжа. Уточнить технические характеристики и текущий статус строительства можно в рамках информационного запроса.


