Horizon Grand Residence занимает позицию в премиальном сегменте рынка недвижимости Батуми благодаря сочетанию локации на первой линии моря и характеристик, редко встречающихся в массовом сегменте. Объекты с прямым доступом к побережью в центре города традиционно демонстрируют высокую ликвидность и устойчивость к рыночным колебаниям. Комплекс предлагает квартиры с современной отделкой и панорамным остеклением, что соответствует ожиданиям требовательных покупателей. Наличие полной комплектации мебелью и техникой повышает привлекательность предложения для инвесторов и конечных пользователей, сокращая время подготовки объекта к эксплуатации.
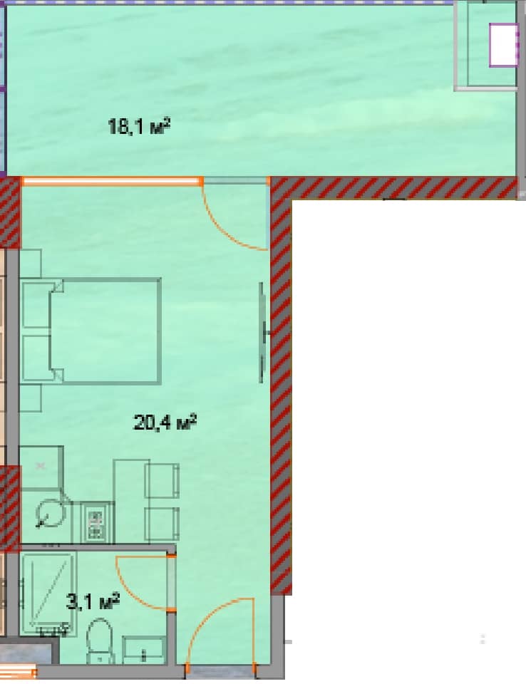
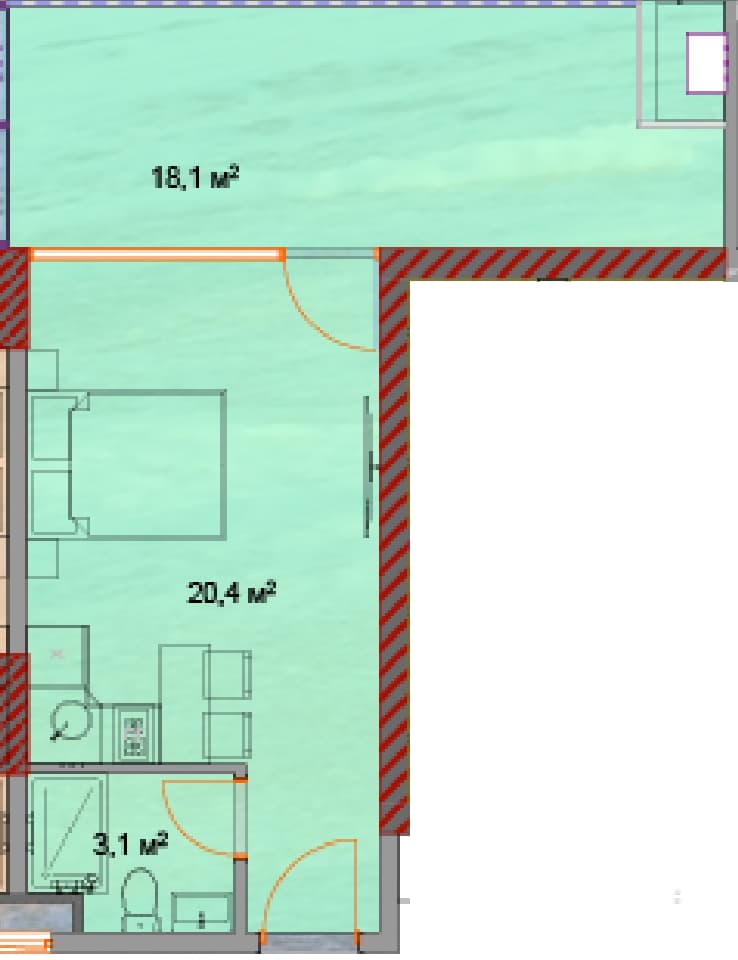
Метраж 42.4 м² подходит для сценариев сезонного использования или долгосрочного проживания, предоставляя достаточно пространства для комфортного пребывания у моря. Такой формат позволяет организовать быт без ощущения тесноты, сохраняя при этом рациональность планировки. Расположение в центре Батуми обеспечивает удобство доступа к городской инфраструктуре, что важно для резидентов, выбирающих недвижимость для регулярного использования в течение года.
Квартира на 12 этаже открывает панорамные виды на Чёрное море и городскую застройку, усиливая атмосферу курортного проживания. Средний уровень обеспечивает достаточную высоту для обзора побережья, при этом оставаясь в зоне комфортного доступа к набережной. Наличие дизайнерской отделки и зеркальных потолков дополняет визуальное восприятие пространства, делая объект привлекательным для резидентов и арендаторов, ценящих эстетику и локацию.
Стоимость $47 053 учитывает рыночную устойчивость объектов на первой линии моря, которые демонстрируют сохранение ценности даже в периоды коррекции рынка. Дефицитность локации в центре Батуми и высокий спрос со стороны туристов поддерживают ликвидность квартиры на вторичном рынке. Цена отражает долгосрочный потенциал актива, связанный с ограниченностью ресурсов побережья и стабильностью туристического потока в курортной столице.
Комплекс позиционируется как объект премиального сегмента с панорамными видами на море и город, современной архитектурой и качественной отделкой. Характеристики проекта, включая кондиционирование и зеркальные потолки, соответствуют ожиданиям покупателей, ищущих комфортное жильё у моря. Получить дополнительную информацию о планировках и условиях можно у консультантов по недвижимости.


