Квартира в Lagoon Resort представляет собой часть масштабного многофункционального комплекса, расположенного в наиболее динамично развивающейся части Батуми — на Новом бульваре. Этот проект от девелопера Horizons Group объединяет жилую среду с гостиничным сервисом международного уровня, создавая автономную экосистему для жизни и отдыха. Расположение на первой линии в окружении современной рекреационной инфраструктуры и близость к парку имени Леха и Марии Качиньских обеспечивают объекту высокую ликвидность. Выбор этой недвижимости продиктован стремлением к сохранению капитала и получению стабильного дохода в локации с ограниченным предложением качественных площадок.
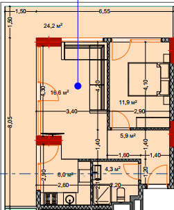
Квартира среднего метража 72.4 м² представляет собой универсальное решение как для личного отдыха, так и для длительного проживания в Батуми. Пространство позволяет выделить функциональные зоны, обеспечивая комфорт, сопоставимый с полноценным городским жильем. В контексте Нового бульвара такие апартаменты востребованы у релокантов и туристов, ценящих простор и наличие сервисов премиального отеля в шаговой доступности.
Выбор 6 этажа в данном комплексе открывает динамичный вид на современную архитектуру района и рекреационные зоны Horizons Group. Это уровень, на котором жилая среда Lagoon Resort ощущается наиболее гармонично: вы находитесь достаточно высоко для обзора и достаточно близко для ощущения уюта. Такие параметры делают квартиру востребованной среди туристов, которые ищут классический отельный отдых с красивой панорамой.
Цена за квартиру площадью 72.4 м² составляет $166 520, что является конкурентным предложением для первичного рынка недвижимости Батуми в сегменте люкс. Объект в Lagoon Resort предлагает сочетание автономности и доступа ко всем городским благам Нового бульвара в пешей доступности. Рациональное объяснение стоимости строится на долговечности здания, энергоэффективности панорамного остекления и престижности самого жилого комплекса.
Объект в Lagoon Resort является сбалансированным решением для инвесторов, нацеленных на приобретение недвижимости в наиболее динамичном районе города. Преимущества первой береговой линии и репутация девелопера подтверждают высокий потенциал доходности данного актива. Для детального ознакомления с объектом и условиями оплаты следует обратиться за профессиональной консультацией.


