Владение квартирой в Montemar Gonio открывает доступ к формату жизни в экологически чистом пригороде с инфраструктурой уровня люкс. Расположение в Гонио гарантирует близость к лучшим галечным пляжам региона, которые не подвержены сильному антропогенному воздействию. Это идеальное место для тех, кто ищет дистанцию от зон массового туризма, но не готов отказываться от городских удобств. Внутреннее наполнение комплекса, включающее SPA-центр, фитнес-зал и открытый бассейн, формирует автономную среду для полноценного отдыха. Проект объединяет в себе преимущества загородной резиденции и современной городской квартиры с профессиональным обслуживанием и круглосуточной охраной.
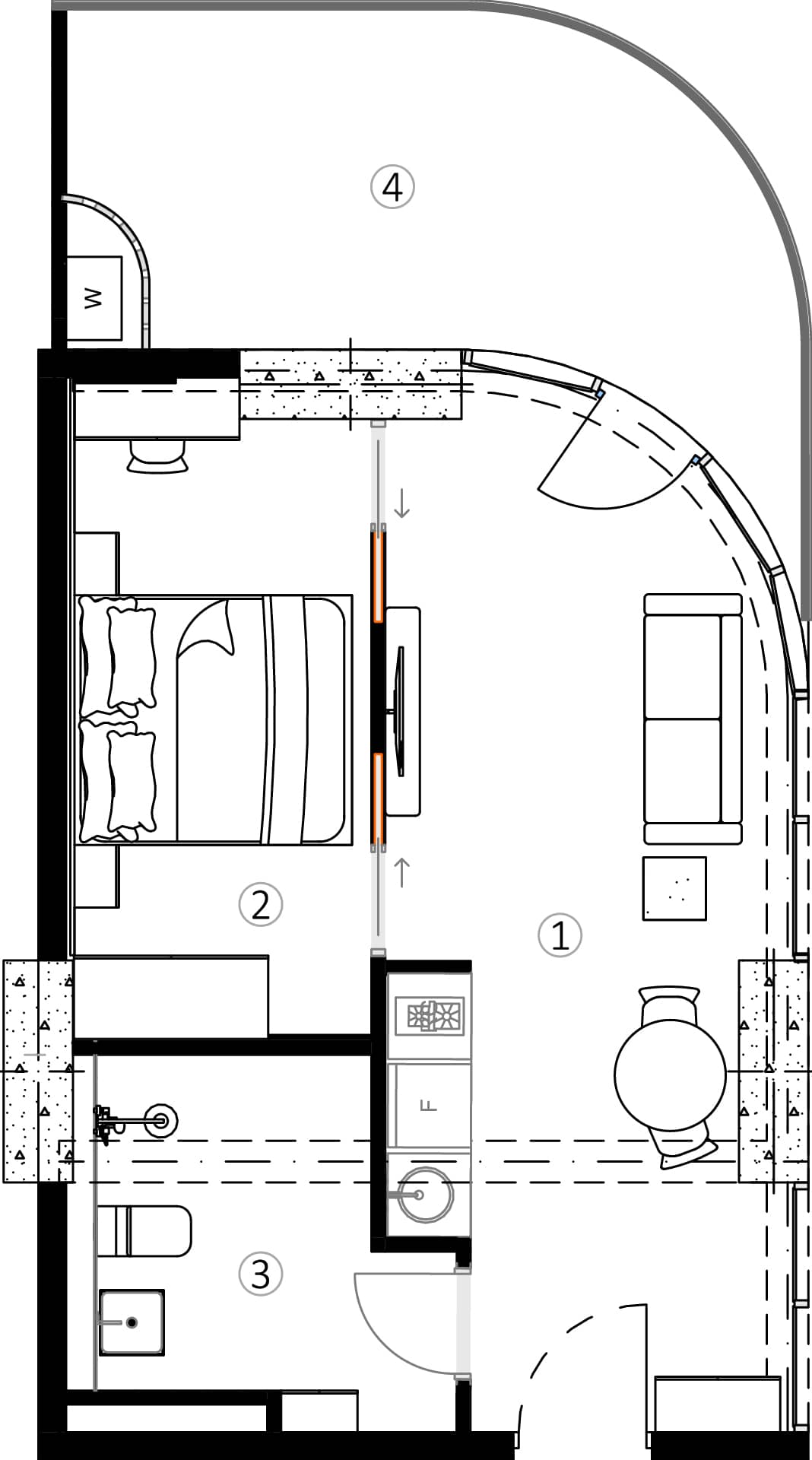
Пространство площадью 52.2 м² позволяет в полной мере насладиться всеми преимуществами жизни в экологически чистом районе Гонио. Такой метраж дает возможность создать стильный интерьер без компромиссов в вопросах удобства. Квартира подходит как для собственного проживания, так и для сдачи в аренду более требовательному сегменту туристов, готовых платить за повышенный комфорт.
Расположение на 4 этаже позволяет в полной мере оценить современную архитектуру Montemar Gonio и окружающий ландшафт. Уровень этажа находится выше большинства соседних строений, что гарантирует стабильный приток света и ощущение свободного пространства. Квартиры на средних этажах традиционно считаются наиболее ликвидными на рынке недвижимости Батуми благодаря своей универсальности.
Цена $140 679 отражает уникальность локации в Гонио, где дефицит участков под качественную застройку на первой береговой линии постоянно растет. Приобретая квартиру по такой стоимости, вы инвестируете в район, который сохраняет статус элитного пригорода Батуми. Близость к аэропорту и чистейшие пляжи Аджарии обеспечивают объекту высокий потенциал капитализации к моменту завершения строительства.
Расположение комплекса в самой тихой и чистой зоне побережья Аджарии выделяет его среди других предложений на рынке Батуми. Формат апарт-отеля минимизирует участие владельца в управлении имуществом, обеспечивая при этом полноценный пятизвездочный сервис. Для получения актуальной шахматки с ценами и подбора планировки под ваши задачи предлагаем воспользоваться информационной поддержкой.

