Montemar Gonio является ответом на растущий спрос на качественное жилье вне перегруженных кварталов Батуми. В локации Гонио свободные участки под застройку на первой и второй береговых линиях практически исчерпаны, что создает естественный барьер для конкуренции и повышает ценность каждого объекта. Квартира в данном комплексе представляет собой дефицитный продукт в сегменте качественного новостроя. Инвестиционная привлекательность района подкрепляется близостью к крепости Гонио-Апсарос и общему статусу элитного пригорода. Выбор этого объекта обоснован сочетанием премиального качества строительства и высокой стадии готовности, что обеспечивает прозрачный горизонт окупаемости.
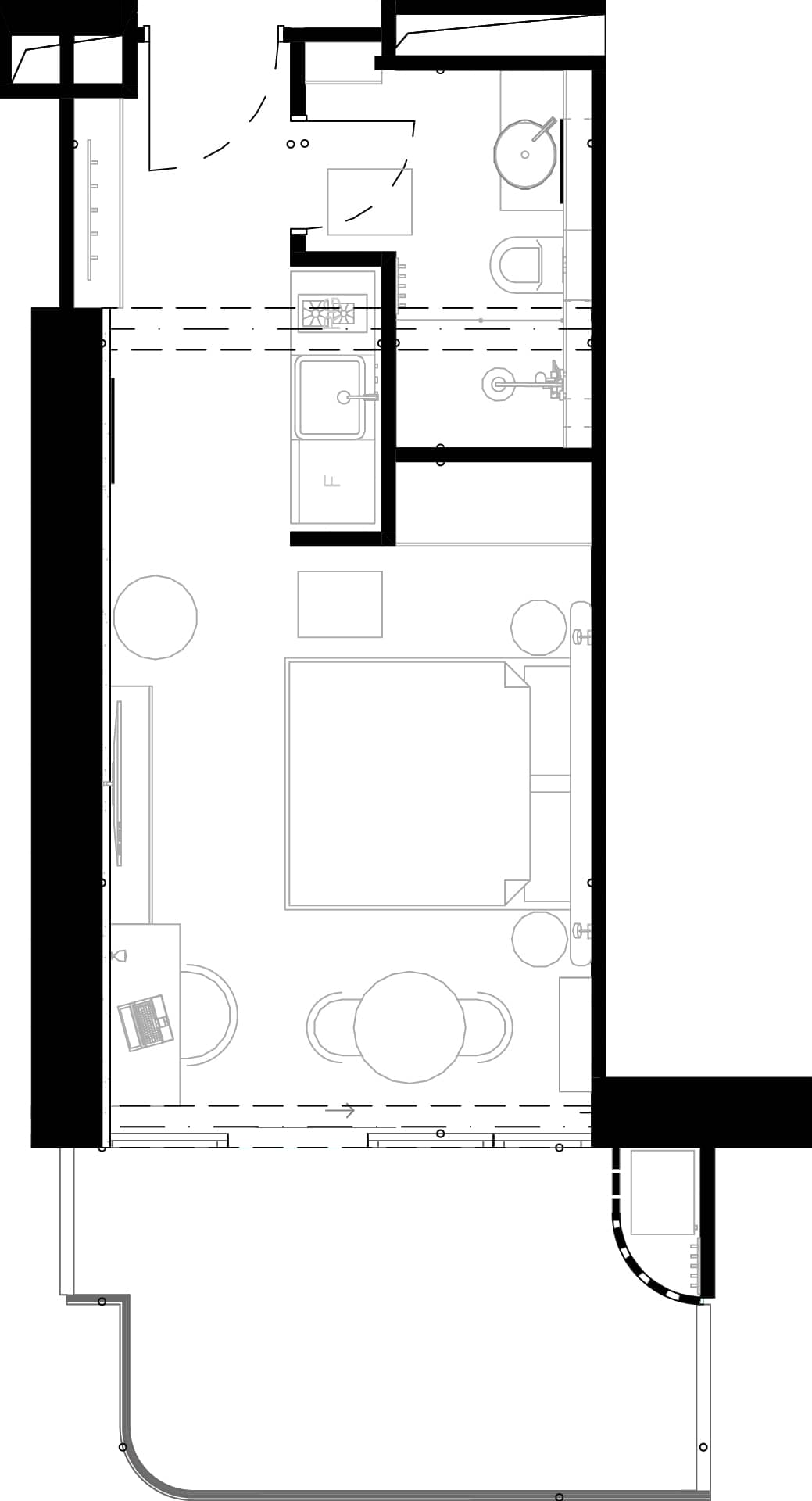
Жилое пространство площадью 39.2 м² отлично подходит для индивидуального сезонного отдыха или проживания пары. Благодаря панорамному остеклению и грамотной планировке, квартира не ощущается тесной, а функциональность помещений соответствует стандартам бизнес-класса. Подобные лоты в Гонио быстро находят арендаторов благодаря чистоте локации и высокому качеству сервиса в самом здании.
Расположение на 10 этаже позволяет в полной мере оценить современную архитектуру Montemar Gonio и окружающий ландшафт. Уровень этажа находится выше большинства соседних строений, что гарантирует стабильный приток света и ощущение свободного пространства. Квартиры на средних этажах традиционно считаются наиболее ликвидными на рынке недвижимости Батуми благодаря своей универсальности.
Цена в размере $114 464 обусловлена в том числе гарантированными видовыми характеристиками и удачным расположением квартиры на 10 этаже. В условиях плотной застройки побережья панорамный вид на море и горы становится самостоятельным активом, который только дорожает со временем. Это выгодное соотношение цены и качественных параметров лота, обеспечивающее ему быструю ликвидность.
Проект Montemar Gonio — это сбалансированное сочетание архитектурной эстетики, высокого качества строительства и выгодного географического положения. Объект полностью соответствует требованиям бизнес-класса и ориентирован на взыскательную аудиторию, ценящую экологию и комфорт. Вы можете сравнить параметры данной квартиры с другими предложениями в комплексе, чтобы принять взвешенное информационное решение.


