Montemar Gonio представляет собой современный проект бизнес-класса, разработанный по концепции mixed-use для максимально комфортного проживания и отдыха. Архитектура здания гармонично вписана в ландшафт, а использование стандартов монолитного строительства гарантирует долговечность и высокую энергоэффективность объекта. В отличие от плотной застройки центральных районов Батуми, данный комплекс выделяется низкой плотностью населения в округе и акцентом на панорамные виды. Квартира в таком проекте — это выбор в пользу эстетики и функциональности, где жилая среда дополнена полным спектром гостиничных сервисов и внутренней инфраструктурой пятизвездочного уровня.
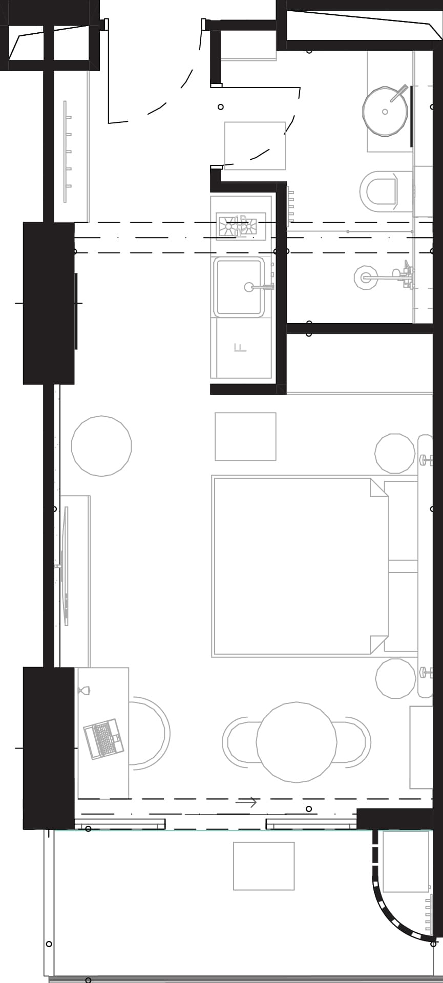
Метраж 34.9 м² является наиболее ликвидным решением для входа в премиальный проект Montemar Gonio. Небольшая площадь минимизирует общие затраты на покупку и последующее содержание недвижимости, при этом сохраняя доступ ко всей пятизвездочной инфраструктуре комплекса. Это оптимальный выбор для тех, кто рассматривает объект как актив для сохранения и приумножения капитала.
Средний уровень, на котором расположен 15 этаж, предлагает золотую середину между видовыми характеристиками и психологическим комфортом. Отсюда открывается отличная перспектива на окрестности Гонио, сохраняя при этом связь с ритмом самого жилого комплекса. Это универсальный выбор для тех, кто ищет баланс высоты, приватности и естественного освещения в своей квартире.
Стоимость квартиры $111 506 полностью обоснована наличием в Montemar Gonio инфраструктуры пятизвездочного отеля. Владелец получает не просто квадратные метры, а доступ к SPA-центру, бассейну и фитнес-залу мирового уровня. Такое наполнение проекта гарантирует высокую арендную ставку, что делает цену оправданной инвестицией в ликвидный актив на экологически чистом побережье.
Квартира в Montemar Gonio является оптимальным решением для тех, кто стремится совместить комфорт современной резиденции с преимуществами проживания в экологически чистом пригороде. Выбор этого объекта в Гонио гарантирует доступ к лучшим пляжам региона и инфраструктуре премиального уровня. Для уточнения деталей и актуального наличия планировок можно получить информационную консультацию на нашем сайте.

