Архитектурная концепция Montemar Gonio базируется на принципах современной эстетики и максимального использования естественного освещения. Здание спроектировано таким образом, чтобы из окон большинства жилых помещений открывались вдохновляющие виды на море или горные вершины Аджарии. Применение долговечных отделочных материалов фасада и панорамного остекления подчеркивает статус проекта бизнес-класса. Квартира в этом комплексе предлагает современный уровень эргономики, где каждый квадратный метр пространства продуман для обеспечения комфорта, а архитектурные решения сохранят свою актуальность и визуальную привлекательность на протяжении многих десятилетий.
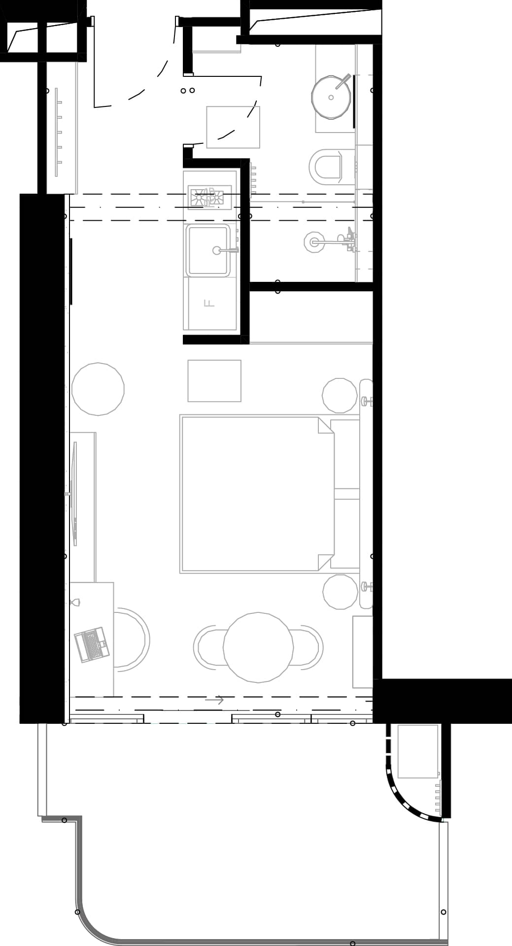
Компактная квартира площадью 39.2 м² представляет собой идеальный инструмент для краткосрочной туристической аренды. Продуманная эргономика позволяет эффективно использовать каждый метр, выделяя зоны для сна и отдыха. В условиях Гонио такой формат жилья пользуется максимальным спросом у путешественников, обеспечивая инвестору высокую оборачиваемость средств и стабильный доход.
Выбирая 8 этаж, вы получаете жилье с отличной инсоляцией и панорамным обзором. Высота данного уровня обеспечивает достаточную дистанцию от придомовой территории, формируя тихую и спокойную среду внутри помещений. Это оптимальный вариант как для собственного сезонного отдыха, так и для сдачи в долгосрочную аренду арендаторам, ценящим качественное восприятие пространства.
Предложенная стоимость $110 152 учитывает применение современных стандартов монолитного строительства и премиальных отделочных материалов. Бизнес-класс проекта Montemar Gonio подразумевает долговечность конструкции и высокую энергоэффективность. Это рациональное вложение, так как качественные характеристики здания и продуманный сервис управляющей компании позволяют сохранять рыночную ценность недвижимости десятилетиями.
Для жизни и сезонного отдыха Montemar Gonio предлагает высокий уровень приватности, безопасности и сервиса. Сочетание панорамных видов, чистого горного воздуха и близости к деловому центру Батуми делает проект привлекательным для долгосрочного владения. Ознакомиться с техническими спецификациями и уточнить условия приобретения недвижимости можно через информационный запрос специалистам.

