Объект в проекте Next Address — это предложение от надежного девелопера Next Group, имеющего репутацию создателя знаковых проектов в Грузии. Строительство ведется с использованием современных технологий и качественных материалов, что соответствует стандартам премиального сегмента. Концепция проекта объединяет в себе жилую, коммерческую и офисную функции, создавая устойчивый спрос на площади внутри комплекса. Для иностранных инвесторов важно, что управление объектом берет на себя профессиональная компания, обеспечивающая техническое обслуживание и поиск арендаторов. Статус собственности в Грузии является безусловным, что делает покупку этой квартиры безопасным и прозрачным вложением капитала в один из самых амбициозных проектов на Аллее Героев.
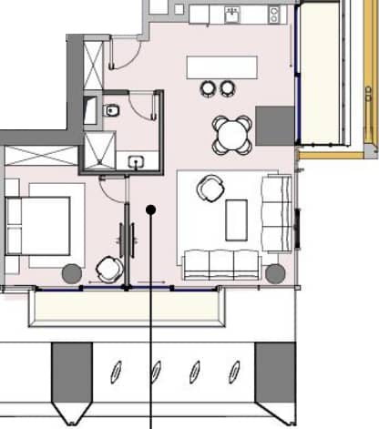
Квартира площадью 74.4 м² относится к востребованному формату среднего жилья в комплексе Next Address. Это решение для тех, кто ищет больше личного пространства и комфорта, не выходя за рамки городского стиля жизни. Наличие панорамных окон позволяет наслаждаться видами на Батуми, а средний метраж дает возможность реализовать индивидуальный дизайн-проект, соответствующий премиальному уровню жилого комплекса.
Квартира на 22 этаже предлагает идеальный баланс между высотными характеристиками и ощущением уюта. С этого уровня открываются приятные виды на архитектурный ансамбль Аллеи Героев и окрестности города. Средние этажи в Next Address традиционно считаются наиболее универсальными, обеспечивая достаточную удаленность от шума улиц при сохранении визуальной связи с ландшафтным озеленением подиума.
Установленная стоимость $141 360 полностью отражает премиальное качество строительства от Next Group и уникальность локации на Аллее Героев. В эту цену заложен не только метраж квартиры, но и доступ к богатой внутренней инфраструктуре: от бассейна до бизнес-блока. Инвестиция в такой объект на стадии строительства позволяет получить актив в самом ликвидном районе Батуми по справедливой рыночной цене.
Подводя итог, данный объект недвижимости идеально вписывается в стратегию долгосрочного владения с горизонтом 3–5 лет. Высокая ликвидность на Аллее Героев и профессиональное управление от Next Group обеспечивают стабильность вашего капитала. Уточнить наличие доступных планировок и текущие стадии строительства можно в рамках информационной консультации по проекту.



