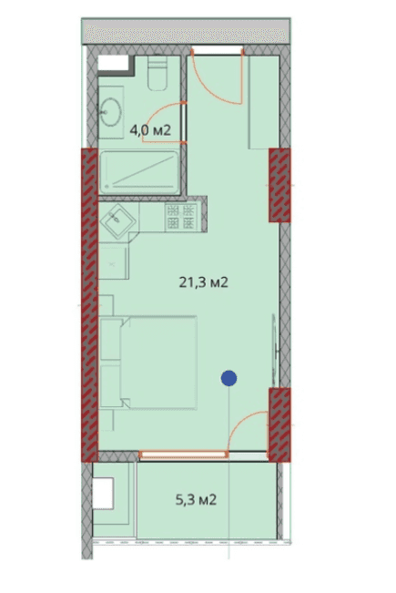
Параметры квартиры
Артикул:13535680
Номер:10
Этаж:20
Комнатность:студия
Цена:$ 53 390
Цена / м²:$ 1 900
Общая площадь:28.1 м²
О жилом комплексе
- Студии :
- от $51 520
- 1-комнатные :
- от $80 278
- 2-комнатные :
- от $106 970
- Стоимость за м² :
- от $1 730
- Квартиры :
- от 26.7 до 56.3 м²
- Этажей :
- 20
- Лифт :
- да
- Технология :
- Монолит
- Дополнительно :
- бассейн, спортзал
- Название на русском :
- Некст Апартментс
- Расстояние до моря :
- 300 м.
Другие квартиры в проекте
Посмотреть все
Похожие квартиры
Другие проекты от Next Apartments
Похожие проекты










