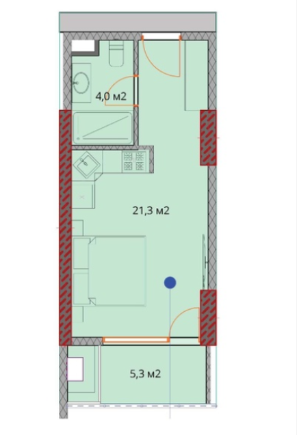
Студия, 31.6 м², 12 этаж в ЖК "OKTO Art House"
Батуми, Аэропорт, переулок Ангиса I, 73-75

О квартире
Артикул
13,534,282Номер
1214Этаж
12Комнатность
Студия
Цена
$36,340Цена / м²
$1,150Общая площадь
31.6 м²
Студии
$36,9601-комнатные
$56,875Стоимость за м²
$1,200Этажей
35Лифт
да
Лифтов
4Дополнительно
бассейн, спортзалРасстояние до моря
600 м.Район
Аэропорт
На карте
Рассрочка без процентов
| Первый взнос | Ежемесячный платеж | Срок |
|---|---|---|
| 20% - $7,268 | $727 | 40 мес. |
| 15% - $5,451 | $686 | 45 мес. |


