The finished construction stage of 7th Heaven Residence eliminates waiting periods associated with new developments. Completed complex allows immediate move-in after purchase, which is particularly valuable for buyers seeking ready housing without construction delays. This status significantly reduces investment risks compared to off-plan purchases in the Batumi market.
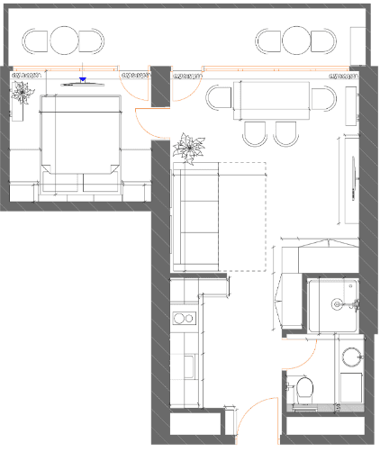
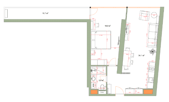
Apartments of 48.46 square meters combine practical living space with efficient investment characteristics. The medium format allows comfortable permanent residence while generating rental income during tourist seasons. Buyers appreciate this size for its ability to serve dual purposes within the completed residential complex by the sea.
The 40 floor placement ensures enhanced privacy and reduced street-level noise for residents. Higher apartments create separation from ground activity while offering expansive perspectives of the coastal area. This positioning appeals to tenants valuing quiet living environments within the developed infrastructure zone.
A price of $121,150 corresponds to the finished construction status and developed infrastructure of this residential complex. Completed buildings eliminate construction risk premiums typically added to off-plan purchases. The cost per square meter varies within the project range while maintaining value through sea proximity and H Group developer reputation.
Permanent residence benefits from developed district infrastructure and complex amenities including pool and fitness center. Proximity to sea and completed building status enable immediate occupancy after purchase. The 40-floor architecture provides modern living conditions in Batumi’s Airport district.



