The Airport district ensures constant tourist flow, as city guests prefer to settle near the transport hub. This forms stable demand for short-term rental in the area. The district is characterized by developed infrastructure with cafes, shops, and public transport stops within walking distance. Zone business activity is supported by transit travelers passing through Batumi Airport.
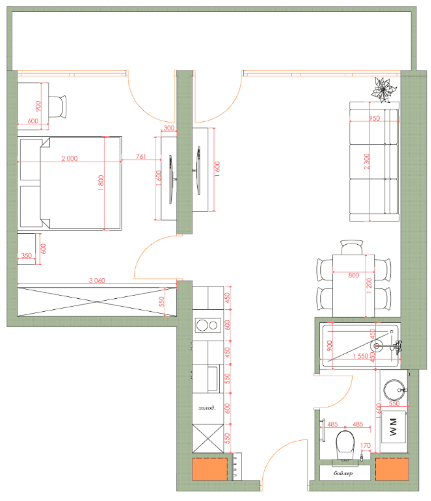
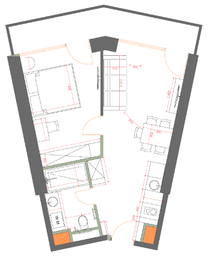
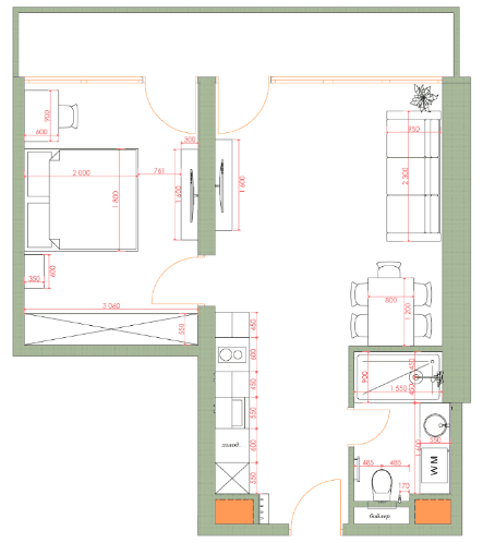
An apartment measuring 42.15 square meters provides balanced space for both rental income and personal use. One-bedroom units in this range offer comfortable living while remaining attractive to tourists seeking quality accommodation near the sea. The medium format suits investors wanting flexibility between rental operations and occasional personal stays.
Residing on the 32 floor conveys prestige associated with elevated living in Batumi’s resort real estate. Upper levels represent premium positioning within the completed complex, attracting quality tenants for rental purposes. Such floors maximize the investment value derived from panoramic coastal views and building height.
The $105,375 valuation accounts for rental income potential in Batumi’s tourist-driven Airport district. Compact formats requiring smaller investments demonstrate faster tenant placement among visitors. This pricing enables investors to achieve quicker exit to rental income compared to higher-priced alternatives in the coastal market.
Permanent residence benefits from developed district infrastructure and complex amenities including pool and fitness center. Proximity to sea and completed building status enable immediate occupancy after purchase. The 40-floor architecture provides modern living conditions in Batumi’s Airport district.


