With only 108 residential units distributed among three towers, the project intentionally restricts supply to maintain exclusivity and market liquidity. The absence of oversaturation in this segment ensures that secondary market transactions face minimal competition and achieve faster closing cycles. Buyers benefit from a predictable ecosystem where shared facilities are utilized efficiently and management oversight remains attentive. This calibrated volume directly correlates with stable rental yields and sustained price appreciation.
Properties around 54.4 m² represent the most liquid segment within the secondary market, bridging affordability and spatial adequacy for diverse buyer profiles. The format satisfies requirements for both permanent residency and medium-term corporate leasing. International companies and freelance specialists consistently prioritize this scale due to its optimal ratio of cost to functional utility. High transaction velocity in this category ensures rapid capital recovery and minimized holding periods for sellers.
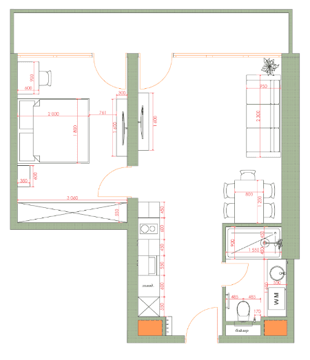
Residing on the 21 floor establishes an optimal equilibrium between urban visibility and acoustic insulation from street-level dynamics. This elevation provides unobstructed sightlines toward the Bagrationi district infrastructure while filtering excessive ambient noise. Natural light distribution remains consistent throughout the day due to balanced facade exposure and glazing proportions. Such positioning appeals to professionals who require stable working environments without sacrificing proximity to district amenities.
At $103,360, the acquisition model aligns with transparent development schedules and standardized material specifications that prevent budget overruns. The cost accounts for high-performance glazing, acoustic insulation, and ergonomic layout planning that minimize long-term maintenance requirements. Buyers benefit from a fixed financial entry point that supports straightforward financing or phased payment arrangements without hidden escalation clauses. This structured pricing enhances capital efficiency and reduces administrative friction during the purchasing cycle.
The combination of functional layout, strategic elevation, and structured pricing creates a residential unit optimized for daily living and asset preservation. Proximity to Zhuli Shartava Avenue, integrated security, and professional oversight ensure operational reliability. Prospective buyers can evaluate available floor plans and financial conditions to align the asset with their residential or portfolio objectives.



