Positioned within the actively growing Bagrationi area, the complex benefits from a strategic mix of established residential blocks and modern commercial hubs. The district maintains excellent transport connectivity to the business center, educational facilities, and major retail networks. Proximity to Zhuli Shartava Avenue guarantees smooth traffic flow and quick access to key urban arteries. This dynamic neighborhood development pattern consistently drives property demand and supports gradual capital appreciation over time.
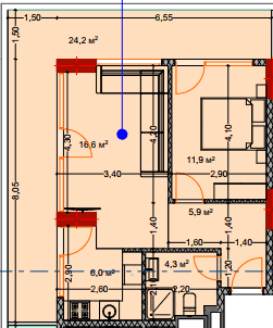
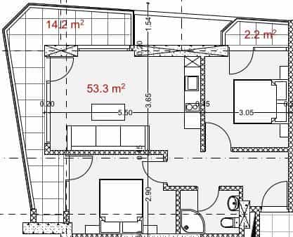
Properties around 69.4 m² represent the most liquid segment within the secondary market, bridging affordability and spatial adequacy for diverse buyer profiles. The format satisfies requirements for both permanent residency and medium-term corporate leasing. International companies and freelance specialists consistently prioritize this scale due to its optimal ratio of cost to functional utility. High transaction velocity in this category ensures rapid capital recovery and minimized holding periods for sellers.
Residing on the 28 floor establishes an optimal equilibrium between urban visibility and acoustic insulation from street-level dynamics. This elevation provides unobstructed sightlines toward the Bagrationi district infrastructure while filtering excessive ambient noise. Natural light distribution remains consistent throughout the day due to balanced facade exposure and glazing proportions. Such positioning appeals to professionals who require stable working environments without sacrificing proximity to district amenities.
At $93,690, the acquisition model aligns with transparent development schedules and standardized material specifications that prevent budget overruns. The cost accounts for high-performance glazing, acoustic insulation, and ergonomic layout planning that minimize long-term maintenance requirements. Buyers benefit from a fixed financial entry point that supports straightforward financing or phased payment arrangements without hidden escalation clauses. This structured pricing enhances capital efficiency and reduces administrative friction during the purchasing cycle.
Positioned within a developing neighborhood and integrated into a managed vertical ecosystem, the apartment offers stable environmental parameters and predictable utility consumption. Architectural precision and infrastructure planning support sustained demand across tenant categories. Interested parties may obtain comprehensive layout specifications and implementation timelines from advisors to verify alignment with acquisition goals.


