The architectural concept of Horizon Grand Residence ensures that every apartment provides panoramic views of the Black Sea and the urban landscape. Situated in the central part of Batumi, the complex benefits from the concentration of business and tourist activity, making it a strategic asset for long-term ownership. The property is delivered fully furnished with premium furniture and air conditioning, allowing immediate operation for rental or personal residence. Purchase without intermediaries simplifies the transaction process, while the first-line location supports price stability even during market fluctuations.
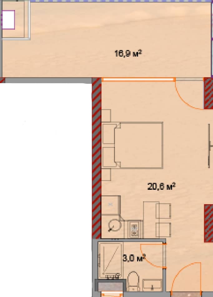
An apartment with an area of 41.2 m² provides a balanced layout suitable for couples or small families planning seasonal residence. The space accommodates comfortable living zones while retaining the benefits of full furnishing and panoramic sea views. In Horizon Grand Residence, this format appeals to buyers who value a turnkey solution in the city center, offering direct access to the embankment and urban infrastructure without the need for additional furnishing or renovation.
A residence on the 6 floor provides a balance between privacy and integration with the surrounding district. The apartment comes fully furnished and ready for use, with direct access to the developed infrastructure of the city center. Lower levels in Horizon Grand Residence are advantageous for those who prioritize convenience in daily routines, while the premium finishing and proximity to the shoreline ensure a high standard of living and sustained demand for rental purposes.
Priced at $34,402, the apartment represents a rational choice in the premium real estate market of Batumi. The cost integrates the advantages of direct sea access, complete furnishing, and modern architectural solutions. Horizon Grand Residence targets buyers seeking ready-to-use housing, and the combination of location scarcity with turnkey conditions ensures that the price aligns with the functional and investment value of the property.
The project delivers premium real estate in the center of Batumi, featuring complete furnishing and modern design. Direct sea access, walking proximity to the embankment, and purchase without intermediaries make the complex a rational option for investors and buyers seeking ready-to-use housing on the coast.


