Акцент на приватность и тишину является ключевой характеристикой жилого комплекса Montemar Gonio. Низкая плотность застройки в районе позволяет жильцам наслаждаться спокойствием, которое трудно найти в центральной части побережья. Квартира в этом проекте ориентирована на покупателей, ценящих личное пространство и природное окружение. Безопасность проживания обеспечивается круглосуточной системой видеонаблюдения и профессиональной службой охраны. Формат комплекса предполагает создание закрытого комьюнити, где жилая функция дополнена зонами для отдыха и релаксации, что делает его востребованным среди состоятельных экспатов и туристов, предпочитающих качественный уединенный отдых.
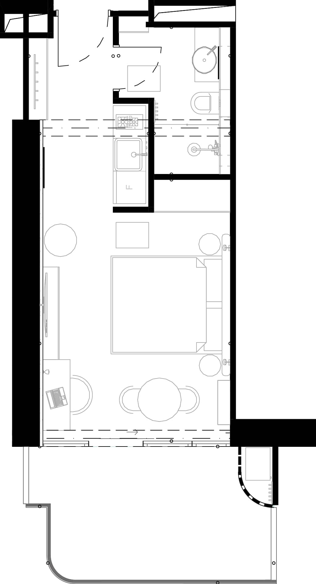
Компактная квартира площадью 39.2 м² представляет собой идеальный инструмент для краткосрочной туристической аренды. Продуманная эргономика позволяет эффективно использовать каждый метр, выделяя зоны для сна и отдыха. В условиях Гонио такой формат жилья пользуется максимальным спросом у путешественников, обеспечивая инвестору высокую оборачиваемость средств и стабильный доход.
Выбирая 11 этаж, вы получаете жилье с отличной инсоляцией и панорамным обзором. Высота данного уровня обеспечивает достаточную дистанцию от придомовой территории, формируя тихую и спокойную среду внутри помещений. Это оптимальный вариант как для собственного сезонного отдыха, так и для сдачи в долгосрочную аренду арендаторам, ценящим качественное восприятие пространства.
Инвестиционная логика цены $116 620 строится на сочетании арендного потенциала и органического роста стоимости метра в данном сегменте. Montemar Gonio выделяется на фоне типовых новостроек региона своей концепцией и качеством исполнения. Подобная стоимость является обоснованным входом в проект на стадии активного развития, позволяя зафиксировать выгодные условия до финального подорожания объекта.
Квартира в Montemar Gonio является оптимальным решением для тех, кто стремится совместить комфорт современной резиденции с преимуществами проживания в экологически чистом пригороде. Выбор этого объекта в Гонио гарантирует доступ к лучшим пляжам региона и инфраструктуре премиального уровня. Для уточнения деталей и актуального наличия планировок можно получить информационную консультацию на нашем сайте.

