The architectural identity of Montemar Gonio is defined by its mid-rise structure and modern monolithic construction standards. This approach ensures both structural durability and high energy efficiency, which are critical for the coastal climate. Primary attention has been paid to the maximum use of natural light through thoughtful glazing and the integration of durable facade materials that will remain relevant for decades. The project reflects a shift toward more sophisticated and aesthetically attractive buildings in Gonio, distinguishing itself from typical high-rise developments with its refined proportions and harmony with the mountain-sea landscape that surrounds the entire complex.
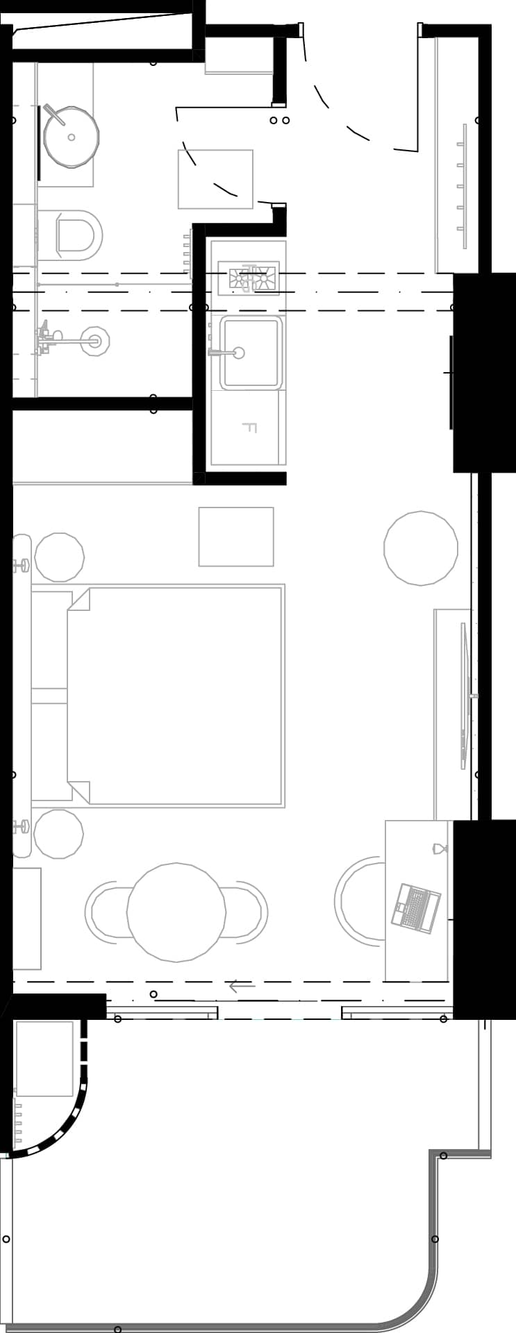
A property of 38.2 m² serves as an excellent entry point into the premium segment of the Adjara coast. Compact apartments in Montemar Gonio show the fastest return on investment because they cater to the largest segment of tourists seeking high-quality accommodation near the cleanest beaches. This size ensures high occupancy rates throughout the season.
The 12 floor offers a perfect balance between elevated views and convenient access within this mid-rise project. At this height, residents can enjoy clear panoramic perspectives of the surrounding Gonio landscape while maintaining a sense of connection to the complex’s infrastructure. It is a popular choice for those seeking a standard business-class experience.
A price of $115,746 is justified by the business-class status of the project and its unique location in Gonio. This value includes access to a full range of internal services, from the SPA center to professional security. Compared to typical new buildings, this investment reflects the high quality of construction and finishing materials used throughout the complex.
Choosing an apartment here means opting for privacy and the comfort of a five-star hotel. The autonomous infrastructure, including the SPA and pool, makes it a self-sufficient destination for a high-standard lifestyle by the sea. You can compare the available layouts and terrace options to find the most suitable match for your goals.

