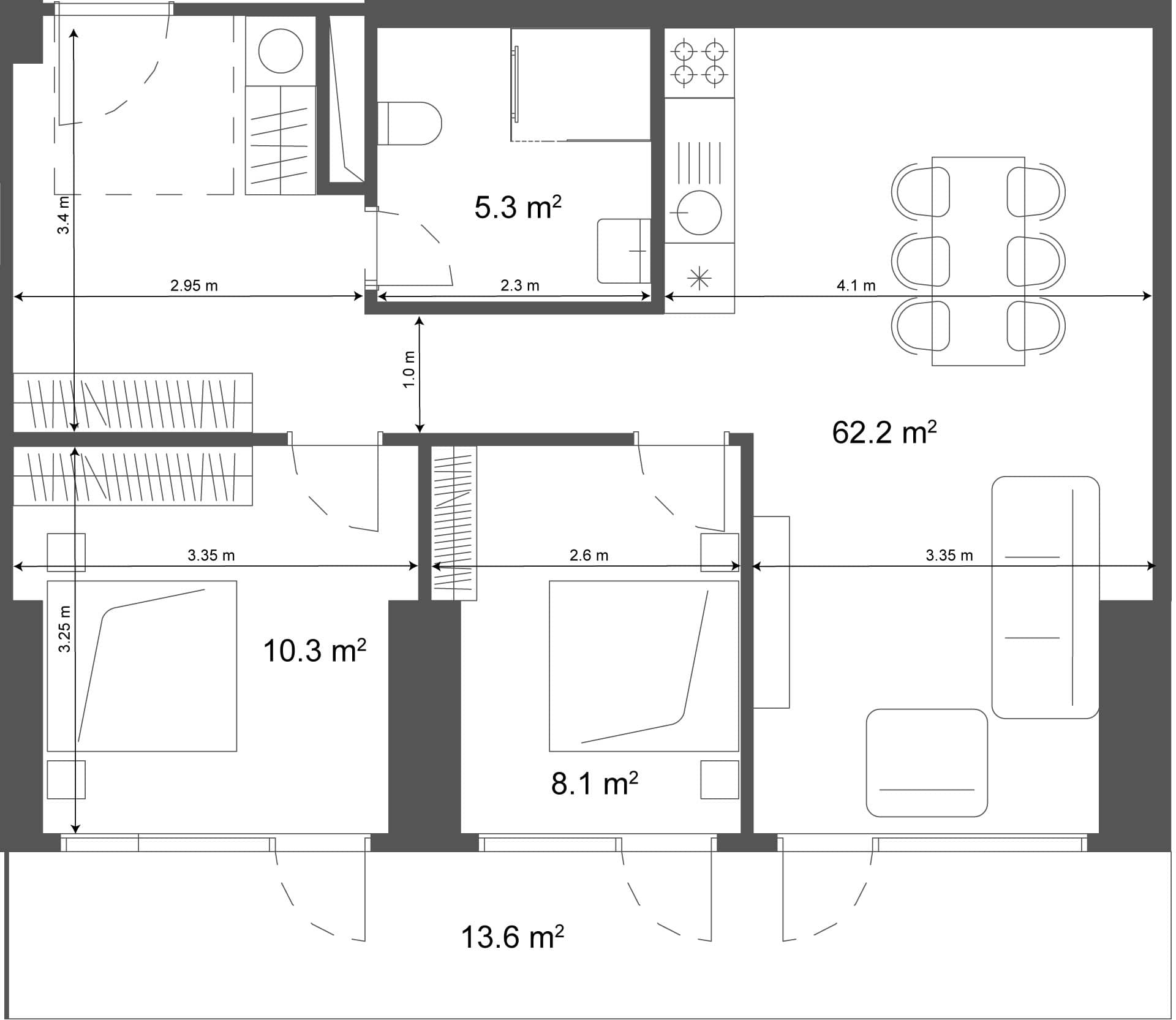
A spacious unit of 75.8 m² prioritizes privacy and comfortable living without compromising service. Larger formats suit buyers seeking a living format with hotel discipline. The complex features branded interiors according to Ramada by Wyndham standards. Management is entrusted to River Rock enhancing the service component for all residents. This is a solution for those who view the purchase as an investment in a rental business. Comfortable living without compromising between privacy and service is the main objective. The layout includes full kitchen areas expanding rental scenarios beyond standard hotel rooms.
The apartment measuring 75.8 m² appeals to expats seeking modern housing formats. Professional management infrastructure and predictable operations define the living experience. From a liquidity perspective in Batumi compact and mid-sized formats with kitchens are most versatile. These are easier to rent to tourists expats and mid-term tenants in the city. The layout includes full kitchen areas expanding rental scenarios beyond standard hotel rooms. Such units are easier to rent to tourists expats and mid-term tenants. The branded residences format ensures high service standards even for smaller living spaces.
The apartment on the 18 floor offers a balance of height and comfort. View-oriented features are part of the modern urban format of the building. Architecturally the project follows a modern urban format with view-oriented features. The complex features branded interiors according to Ramada by Wyndham standards. Management is entrusted to River Rock enhancing the service component for all residents. This infrastructure set practically increases the property value for every owner. Tenants receive a format close to a hotel while owners get a product.
The valuation of $248,172 correlates with project implementation stage and development of Heroes Avenue. Central Batumi has few projects where an international hotel brand is integrated. This makes Ramada Residences a clear product for international buyers. For foreign citizens Georgia’s market remains open without special restrictions. The investment horizon for this complex appears medium- to long-term. Price growth potential logically correlates with project implementation stage. Format rarity ensures stronger positions in the secondary market.
To select the optimal layout and current terms submit a consultation request. Ramada Residences is service-oriented real estate for those who choose Batumi. The project is worth considering when liquidity brand and managed format become priorities. Branded residences in central Batumi are chosen for the combination of international service standards. Stable neighborhood demand and limited supply in this segment define value. If your goal is an investment with a clear operational model this meets objectives. Living with hotel-level comfort meets both objectives without compromise.



