Расположение на 6 этаже гарантирует максимальную изоляцию от внешнего шума и полную приватность проживания. Квартиры на верхних уровнях комплекса обладают наилучшей инсоляцией и проветриваемостью. Вид на побережье и район Аэропорта создаёт премиальную атмосферу для резидентов и гостей Батуми. Подобные объекты ценятся за эксклюзивность и статус, подкреплённые качеством застройки Elt Building.
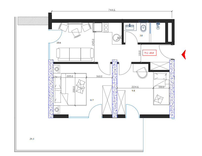
Площадь 75.2 м² формирует универсальное пространство, подходящее как для жизни, так и для сдачи внаём. Локация Marina Club в 75 метрах от моря усиливает ценность такого метража в курортном городе. Квартира обеспечивает достаточный комфорт для постоянного проживания без потери инвестиционного потенциала. Формат востребован благодаря гибкости использования и расположению в развивающемся районе Аэропорта.
Расположение на 6 этаже создаёт ощущение единства с ландшафтом и внутренней инфраструктурой проекта. Квартира на этом уровне удобна для семей с детьми благодаря лёгкому доступу к безопасным зонам отдыха. Близость к морю в 75 метров ощущается через озеленение двора без машин. Подобные объекты востребованы за счёт тишины и интеграции в курортную атмосферу комплекса.
Цена $124 080 обоснована перспективами района Аэропорта и дефицитом качественного жилья в шаговой доступности от пляжа. Инвестиционный горизонт в 3–5 лет логичен для данного формата, учитывая развитие курортной зоны. Управляющая компания и высокий туристический поток обеспечивают стабильный арендный доход. Вложения в Marina Club защищены репутацией застройщика Elt Building и востребованностью локации.
Район Аэропорта и расстояние в 75 метров до моря определяют высокую востребованность квартир в Marina Club. Проект сочетает современные архитектурные решения с функциональностью жилой среды класса комфорт+. Застройщик Elt Building гарантирует качество реализации объекта к {{built-date}} году. Узнать подробности о планировках и инфраструктуре комплекса можно, оставив заявку на консультацию.



