Данная квартира в комплексе Next Address спроектирована с учетом потребностей в круглогодичном комфорте, что выделяет её среди предложений курортной недвижимости Батуми. Многофункциональность проекта, включающего офисы и торговые площади, создает среду, которая живет активной жизнью вне зависимости от туристического сезона. Наличие собственной системы безопасности, подземного паркинга и фитнес-зала делает проживание здесь удобным для семей и деловых людей. Расположение на престижной Аллее Героев обеспечивает не только отличные видовые характеристики, но и близость к административному центру города. Это надежный актив, ценность которого подкрепляется качеством исполнения, развитой внутренней инфраструктурой и стратегическим местоположением в главном деловом хабе.
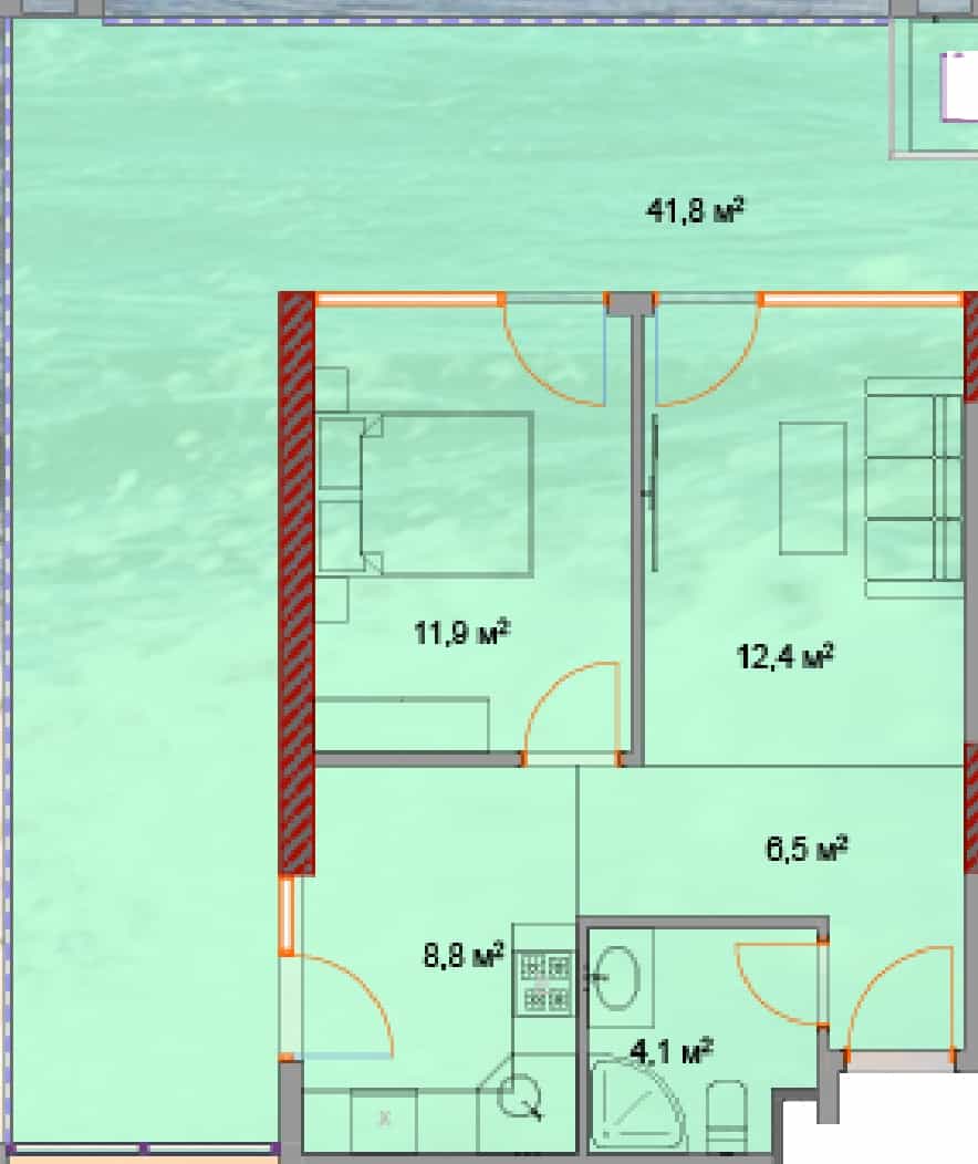
Просторная квартира площадью 87.4 м² спроектирована для максимально комфортного семейного проживания в Next Address. Увеличенный метраж позволяет выделить несколько спален и просторную гостиную для приема гостей. В контексте расположения на Аллее Героев, такое жилье является редким и ценным предложением, сочетающим масштаб загородной резиденции с преимуществами проживания в центре современного мегаполиса.
Выбор 24 этажа в комплексе такого класса гарантирует стабильную ликвидность недвижимости. Средний уровень этажности пользуется устойчивым спросом как у арендаторов, так и у покупателей на вторичном рынке Батуми. Это золотая середина, где комфортная высота сочетается с прекрасными техническими характеристиками здания и быстрым доступом к лифтовым холлам, ведущим к инфраструктуре бизнес-блока.
Стоимость $165 186 включает в себя возможность пользоваться автономной экосистемой сервисов внутри Next Address. При площади 87.4 м² данное предложение является конкурентоспособным на рынке Батуми, учитывая наличие профессиональной управляющей компании и систем безопасности. Это рациональный выбор для тех, кто ценит комфорт mixed-use проектов, где все необходимые услуги уже включены в концепцию дома.
Итоговый анализ подтверждает, что выбор в пользу Next Address — это выбор в пользу эпицентра развития города. Близость к морю, стадиону UEFA и деловым центрам Батуми создает уникальный баланс для любого сценария использования квартиры. Комплекс на Аллее Героев остается одной из самых привлекательных точек для тех, кто хочет сравнить лучшие предложения недвижимости в премиальном сегменте.


