Параметры квартиры
Article:13534121
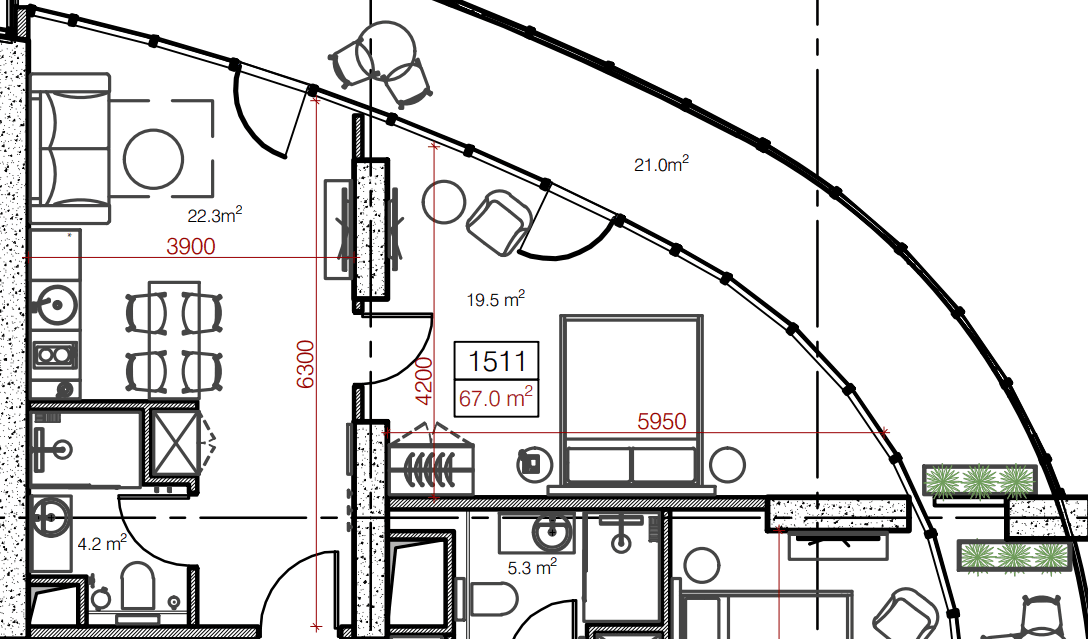
Numeration:1511
Floor:15
Roominess:1-room
Price:$ 100 800
Price / m²:$ 1 500
Total area:67.2 m²
О квартире
О жилом комплексе
- Studios:
- from $ 59 360
- 1-room apartments:
- from $ 100 800
- Cost per m²:
- from $ 1 400 m²
- Apartments:
- from 42.4 to 72.9 m²
- Floors:
- 34
- Elevator:
- yes
- Technology:
- monolith
- Features:
- pool, gym
- Name in Russian:
- Овал
- Distance to the sea:
- 685 m
Installment without price increase
Down payment, $Monthly payment:Duration, month
20% - $20 160$3 360up to 36 months
Другие квартиры в проекте
Посмотреть все
Похожие квартиры
1-room, 62.3 m²
$ 69 465
$ 1 115 per m²
Horizon Grand Residence
Developer: Horizons Group
delivery 2027y.
11 floor of 27
1-room, 65.2 m²
$ 72 372
$ 1 110 per m²
LemonGarden Residence & Spa
Developer: Georgian Group
delivery 2025y.
14 floor of 21
Другие проекты от Metropol
Похожие проекты














