Рассматриваемая квартира находится в инвестиционно-привлекательном проекте Radisson Residences, концепция которого строится на глубоком объединении приватного проживания и премиальной отельной инфраструктуры. На территории комплекса предусмотрено создание благоустроенного частного пляжа, SPA-центра, открытого и крытого бассейнов, а также современных фитнес-пространств. Локация в районе Аэропорт позволяет резидентам наслаждаться спокойным отдыхом у моря, сохраняя при этом возможность быстро добраться до ключевых деловых и развлекательных объектов курортного Батуми.
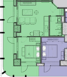
Квартира среднего формата площадью 66.8 м² предлагает оптимальный баланс между инвестиционной привлекательностью и личным комфортом. Такой метраж идеально подходит для длительного проживания семейных пар или корпоративных экспатов, которым требуется выделенная зона для отдыха и работы. Наличие полноценного жизненного пространства повышает интерес к объекту со стороны долгосрочных арендаторов, ценящих статусность и сервисы уровня международных отелей.
Уровень 3 этажа привлекает покупателей, ценящих психологический комфорт от близости к земле и окружающему ландшафту. В контексте развивающегося района Аэропорт с его спокойной атмосферой, такое расположение позволяет наслаждаться уютом без отрыва от природы. Отсутствие необходимости подниматься на большую высоту делает этот вариант оптимальным выбором для тех, кто ищет расслабленный формат отдыха у моря с сохранением всех стандартов безопасности.
Инвестиция в размере $244 496 гарантирует юридическую чистоту и прозрачность управления, присущие объектам под эгидой мировых брендов. Заявленная стоимость коррелирует с высокими затратами девелопера на соблюдение международных регламентов строительства и отделки. Для иностранного инвестора этот прайс означает уверенность в качестве готового продукта и отсутствие скрытых рисков при оформлении недвижимости в полную собственность.
Данный вариант идеально подходит для тех, кто требует стабильного качества строительства и желает иметь ежедневный доступ к сервисам премиального отеля. Приватный пляж, SPA-инфраструктура и управление международного уровня создают безупречную среду для жизни у моря. Вы можете уточнить актуальные условия приобретения и особенности планировки, связавшись со специалистами отдела продаж.


