Брендированные резиденции в центральной части Батуми выбирают именно потому, что они легче масштабируются в аренде и лучше сохраняют позицию на вторичном рынке. Проект имеет смысл рассматривать, когда приоритетом становится ликвидность и управляемый формат, а не только квадратные метры. Спрос формируется за счёт связки бренд плюс сервис плюс район, что делает объект востребованным у туристов, деловых гостей и цифровых кочевников.
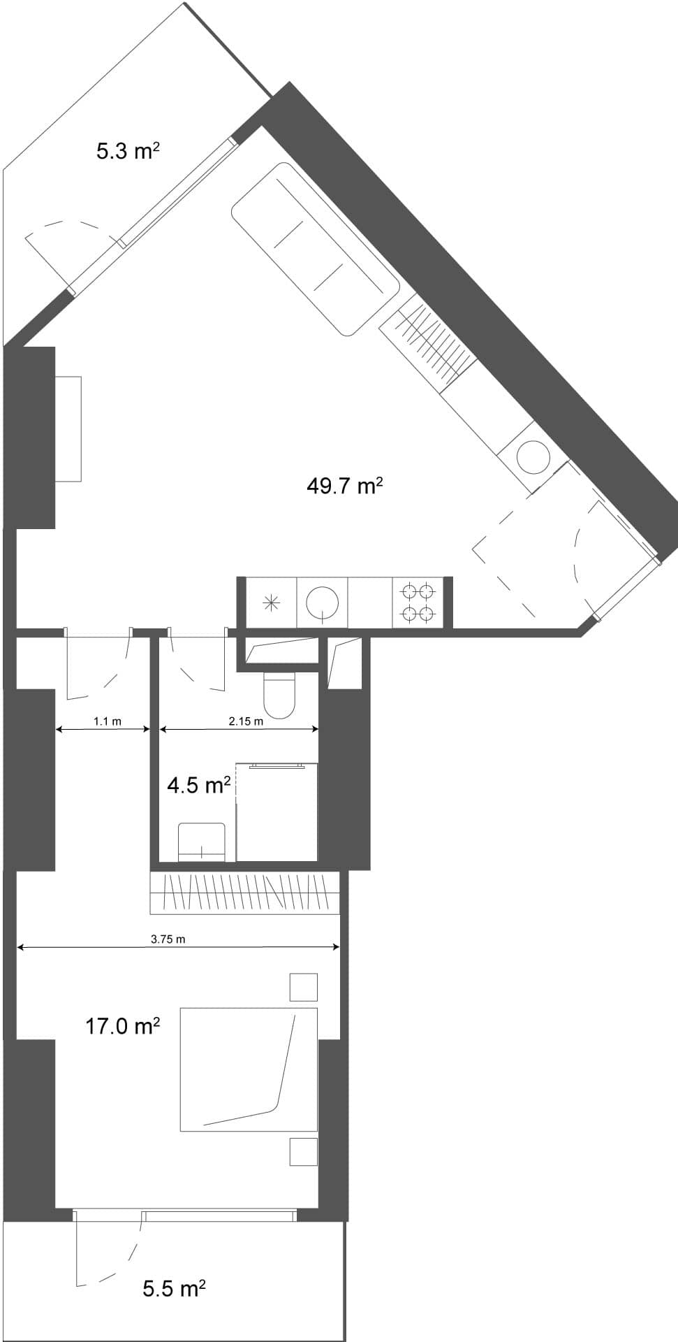
Площадь около 60.5 м² позволяет организовать комфортное проживание с выделенной спальней и гостиной, что повышает ценность объекта на среднесрочном рынке. Такой метраж востребован у digital nomads, которым требуется пространство для работы и жизни в условиях сервисного управления. Функциональная планировка в стандартах Ramada обеспечивает эффективное использование каждого метра без ощущения тесноты в городской среде.
Расположение квартиры на 21 этаже предлагает оптимальный баланс между высотой, видовыми характеристиками и комфортом проживания. Средние уровни защищают от уличного шума, но при этом сохраняют связь с городской средой и видами на район Аллеи Героев. Это универсальный выбор, который подходит большинству покупателей, ищущим золотую середину между приватностью верхних этажей и доступностью нижних.
Стоимость $205 691 обоснована расположением в одном из самых активных районов Батуми, где смешанный трафик удерживает спрос круглый год. Локация на Аллее Героев является фактором, поддерживающим цену объекта даже в периоды сезонных колебаний рынка недвижимости. Инвестиция в такой адрес обеспечивает защиту капитала за счёт дефицита качественных предложений в центральной части города.
Инвестиционный горизонт для этого комплекса выглядит средне- и долгосрочным, опираясь на редкость формата и развитие района Аллеи Героев. Покупка здесь имеет смысл, когда приоритетом становится управляемый формат и международный стандарт качества, а не только квадратные метры. Чтобы принять взвешенное решение, стоит рассмотреть доступные варианты планировок и сравнить их с аналогами на рынке.



