Архитектурное решение Tekto Location базируется на каскадной форме здания, что обеспечивает максимальные видовые характеристики для большинства жилых лотов. Данный проект премиального сегмента использует масштабное панорамное остекление, открывающее резидентам обзоры на морскую акваторию и горные массивы Аджарии. Квартира в этом комплексе становится частью современной экосистемы, где функциональность пространства дополнена эстетикой современного модернизма. Использование качественных материалов и инженерных систем подчеркивает статус объекта и гарантирует его долговечность. Это предложение ориентировано на тех, кто ищет баланс между современной архитектурой и близостью к природным достопримечательностям региона.
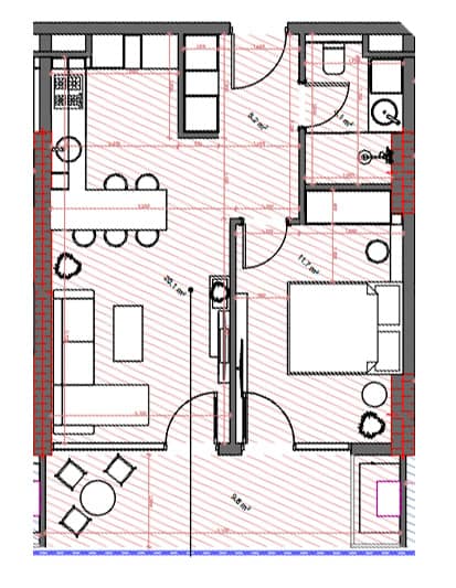
Квартира площадью 53 м² представляет собой универсальный актив, который легко адаптируется под разные запросы рынка. Она одинаково привлекательна для семейных пар и для тех, кто ищет качественное жилье для собственного пребывания в Батуми. Наличие дополнительного пространства повышает арендную ставку и делает объект ликвидным в любое время года.
Расположение квартиры на 13 этаже гарантирует оптимальный уровень естественного освещения в течение всего дня. Средние этажи позволяют в полной мере оценить преимущества панорамного остекления, не вызывая чувства чрезмерной высоты. Это создает уютную жилую среду, где вид из окна становится естественным продолжением интерьера в гармонии с природой Махинджаури.
Приобретая недвижимость за $32 595, владелец получает не только квадратные метры, но и комплекс гостиничных услуг премиум-класса. Круглосуточная охрана, видеонаблюдение и уход за зеленой территорией входят в концепцию Tekto Location. Расположение на 13 этаже дополняет стоимость квартиры исключительными видовыми характеристиками, которые ценятся на рынке выше стандартных предложений.
Квартира в Tekto Location является редким примером недвижимости, где близость к Ботаническому саду и чистейшим пляжам Махинджаури сочетается с премиальным сервисом. Это сбалансированное решение для тех, кто ищет комфортное жилье в экологически чистой зоне Батуми с понятной моделью управления.


