The complex includes its own infrastructure with swimming pool, fitness center, parking, and 24/7 security. A management company handles operations while commercial premises occupy ground floors. Availability of own infrastructure increases complex attractiveness for rental and permanent residence, creating additional value for apartment owners seeking passive income opportunities.
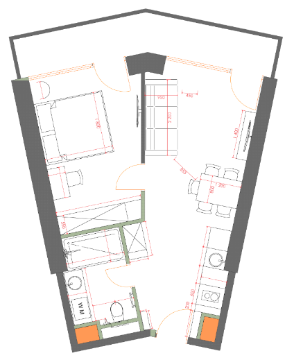
Apartments of 49.63 square meters combine practical living space with efficient investment characteristics. The medium format allows comfortable permanent residence while generating rental income during tourist seasons. Buyers appreciate this size for its ability to serve dual purposes within the completed residential complex by the sea.
The 23 floor location delivers pleasant views while maintaining comfortable living conditions. Medium-height apartments capture district scenery and partial sea glimpses from the 60-meter coastal position. Such floors appeal to buyers seeking visual appeal without concerns about extreme building height in the Airport district.
Pricing at $89,334 supports object liquidity through alignment with market expectations for completed sea-side properties. The deficit of first coastline proposals sustains value regardless of broader market conditions. This cost position enables flexible exit strategies for investors within the three to five year investment horizon.
7th Heaven Residence represents liquid real estate by the sea with H Group developer credentials. Compact apartment formats demonstrate high occupancy while sea-side deficit supports value retention. These factors combine to create a positioned offering within Batumi’s completed residential complex inventory.



