The architectural identity of Montemar Gonio is defined by its mid-rise structure and modern monolithic construction standards. This approach ensures both structural durability and high energy efficiency, which are critical for the coastal climate. Primary attention has been paid to the maximum use of natural light through thoughtful glazing and the integration of durable facade materials that will remain relevant for decades. The project reflects a shift toward more sophisticated and aesthetically attractive buildings in Gonio, distinguishing itself from typical high-rise developments with its refined proportions and harmony with the mountain-sea landscape that surrounds the entire complex.
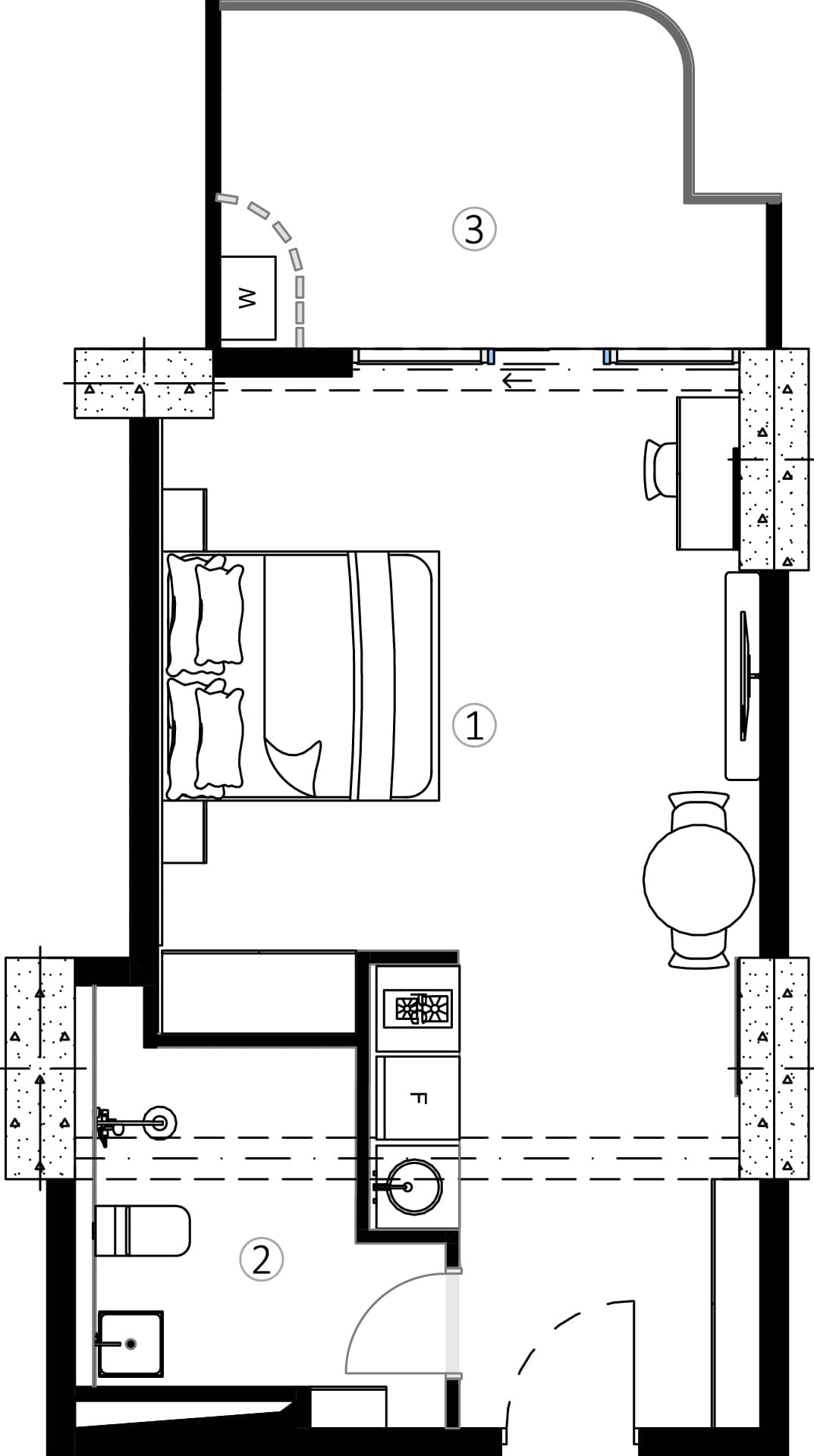
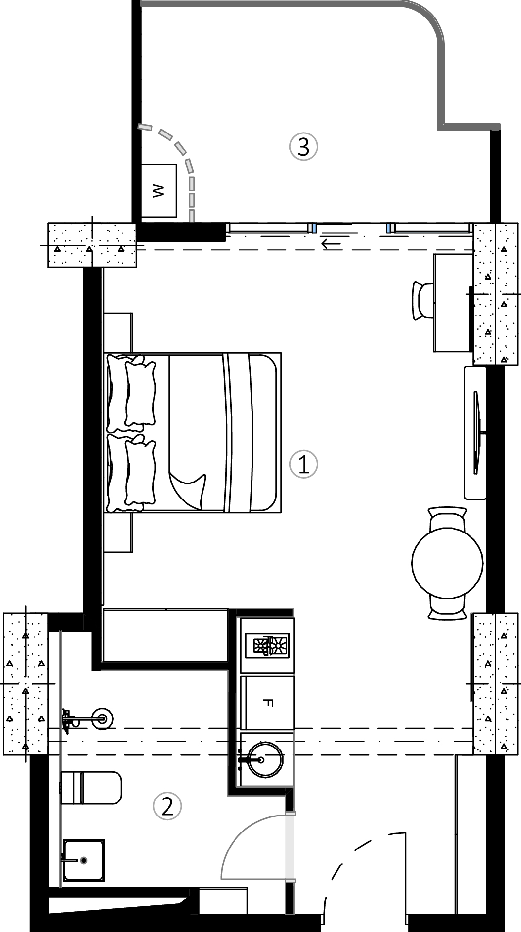
The 45.5 m² layout is designed for those who prioritize extra comfort during their seasonal vacations or long-term stays. This medium-sized apartment provides enough space for a separate bedroom and a spacious living area, which is highly valued by couples. The ergonomics of the project ensure that every meter is used to enhance the living experience.
Located on the 10 floor, this apartment represents the classic middle-tier positioning that appeals to a wide range of tenants and buyers. This level captures the essence of Montemar Gonio’s architectural concept, providing a harmonious vantage point that isn’t too high but offers a significant improvement in privacy compared to the lower floors.
At $150,150, the buyer acquires not just a residential unit of 45.5 m², but a comprehensive lifestyle product with five-star hotel infrastructure. The presence of an outdoor pool, gym, and professional management company adds significant long-term value to the property. This ensures that the apartment remains a liquid and attractive asset for both rent and resale.
Choosing an apartment here means opting for privacy and the comfort of a five-star hotel. The autonomous infrastructure, including the SPA and pool, makes it a self-sufficient destination for a high-standard lifestyle by the sea. You can compare the available layouts and terrace options to find the most suitable match for your goals.

