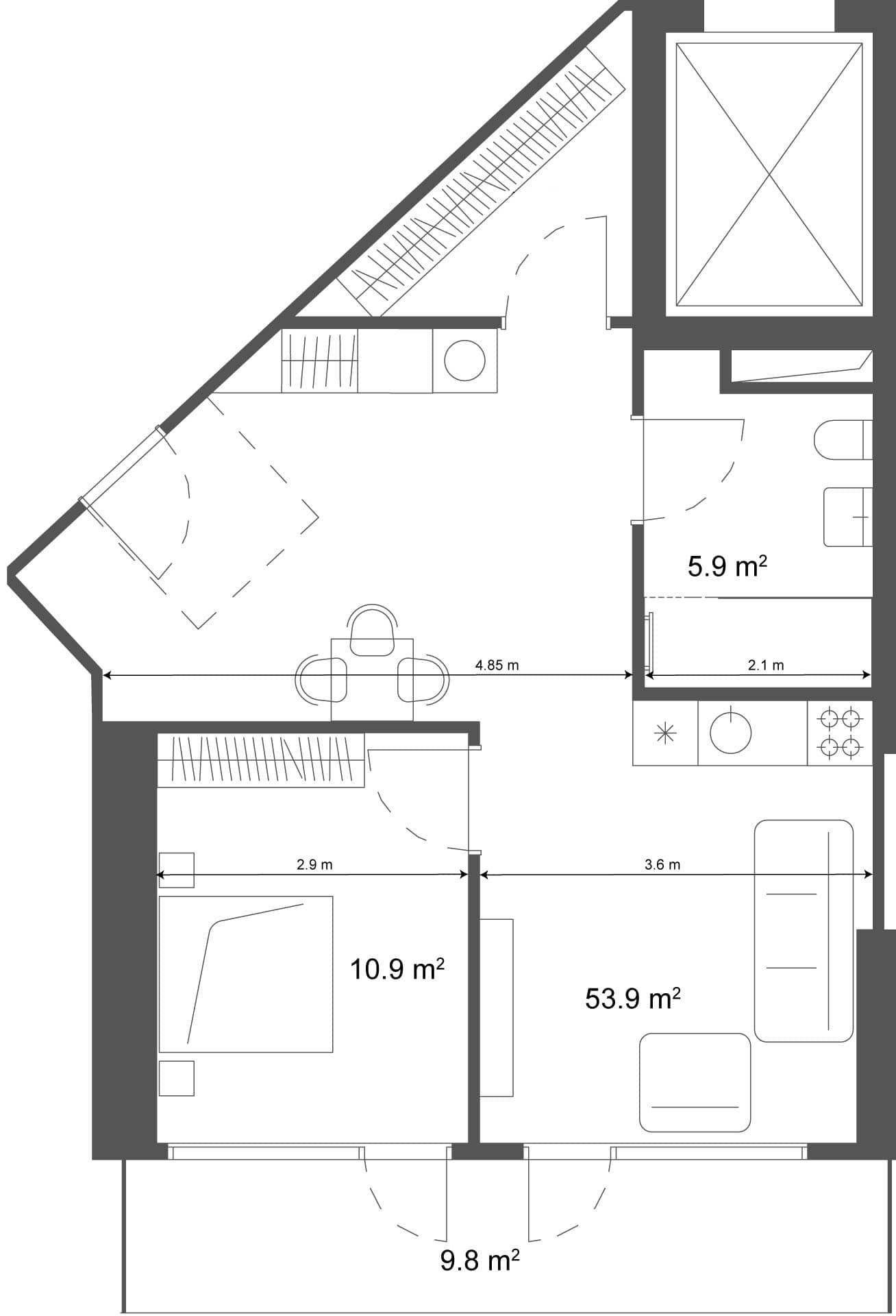
1-แแแแฎแแแแ แแแแ, 63.7 แยฒ, 20 แกแแ แแฃแแ แแ แแแฅแขแจแ "Ramada Residences"
แแแแฃแแ, แฎแแแจแแแจแแแแ, แคแแ แแกแแแแแก แฅ. 10

แแแแแก แจแแกแแฎแแ
แแแแ : 13,550,350
แแฃแแแ แแชแแ : 2005
แกแแ แแฃแแ : 20
แแแแฎแแแแแแ : 1-แแแแฎแแแแ
แคแแกแ : $204,508
แคแแกแ / แยฒ : $3,210
แกแแแ แแ แคแแ แแแแ : 63.7 แยฒ
แแ แแแฅแขแแก แจแแกแแฎแแ
แกแขแฃแแแ : $135,131
1-แแแแฎแแแแ แแแแ : $175,771
2-แแแแฎแแแแ แแแแ : $248,172
แคแแกแ แยฒ-แแ : $3,175
แแแแกแ : premium
แแแแแแ : แแแ 34.1 แแแ 76.6 แยฒ
แกแแ แแฃแแแแ : 45
แแแแแแแก แ แแแแแแแแ : 274
แแแคแขแ : แแแแฎ
แแแคแขแแแแก แ แแแแแแแแ : 4
แแฆแแแแแ แแแแซแแแ : 356 แ
แฃแแแแ : แฎแแแจแแแจแแแแ
แ แฃแแ
แกแฎแแ แแ แแแฅแขแแแ One Development-แแกแแแ
แแกแแแ แแซแแแแ
แกแขแฃแแแแแแ1-แแแแฎแแแแ2-แแแแฎแแแแ3-แแแแฎแแแแ4-แแแแฎแแแแ
แแแแแแแแแแแแฆแแแกแแแ แแฎแแแกแแแคแ 1-แแแแฎแแแแ แแแแแแแกแ แฃแแแแฃแแ แ แแแแแขแแแแแคแ
60 000-แแแ100 แแแแกแแแแแแแ แแแแ แกแแ แแฃแแแแแแแแก แแแแกแแแแคแ แกแขแฃแแแแแแ
แแแแฏแแแแแกแ แฃแแแแแก แแแ แแจแ1-แแแแฎแแแแ แแแกแ แฃแแแแฃแแ แ แแแแแขแแ2-แแแแฎแแแแ แแแกแ แฃแแแแฃแแ แ แแแแแขแแแกแขแฃแแแ แแแกแ แฃแแแแฃแแ แ แแแแแขแแ
แกแขแฃแแแแแแ1-แแแแฎแแแแ2-แแแแฎแแแแ3-แแแแฎแแแแ4-แแแแฎแแแแ
แแแแแแแแแแแแฆแแแกแแแ แแฎแแแกแแแคแ 1-แแแแฎแแแแ แแแแแแแกแ แฃแแแแฃแแ แ แแแแแขแแแแแคแ
60 000-แแแ100 แแแแกแแแแแแแ แแแแ แกแแ แแฃแแแแแแแแก แแแแกแแแแคแ แกแขแฃแแแแแแ
แแแแฏแแแแแกแ แฃแแแแแก แแแ แแจแ1-แแแแฎแแแแ แแแกแ แฃแแแแฃแแ แ แแแแแขแแ2-แแแแฎแแแแ แแแกแ แฃแแแแฃแแ แ แแแแแขแแแกแขแฃแแแ แแแกแ แฃแแแแฃแแ แ แแแแแขแแ

