Статус завершенного строительства позволяет оценить качество материалов и отделки до покупки. Покупатели получают готовый продукт, не требующий дополнительных вложений в ремонт. Управление через профессиональную компанию минимизирует участие собственника в процессах аренды. Проект решает задачу приобретения надежной недвижимости в престижном районе Батуми.
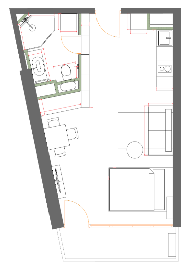
Площадь около 40.28 м² востребована среди туристов, предпочитающих более просторное жилье. Квартира подходит для семейного отдыха или длительного пребывания специалистов в районе. Средний метраж обеспечивает достаточное количество зон для отдыха и работы. Это популярный сегмент на рынке аренды, гарантирующий стабильный спрос.
Расположение квартиры на 35 этаже гарантирует панорамные виды на Черное море и Батуми. Верхние уровни 40-этажных корпусов предлагают лучшее визуальное восприятие локации. Это ключевое преимущество для сдачи в аренду туристам, ищущим впечатляющие виды. Высокий этаж значительно повышает привлекательность объекта в глазах арендаторов.
Стоимость квартиры — $100 700, что соответствует текущему предложению застройщика H Group. Цена за квадратный метр ниже среднего показателя по рынку Батуми, что повышает инвестиционную привлекательность. Соотношение стоимости и локации на первой линии делает объект выгодным приобретением. Покупатель получает недвижимость по конкурентной цене в завершённом комплексе.
Недвижимость в 7th Heaven Residence обладает потенциалом роста стоимости за счет локации. Первая береговая линия и туристический поток гарантируют востребованность объекта. Условия покупки от застройщика оптимизированы для инвесторов и частных покупателей. Это возможность приобрести жилье в перспективном районе города.


