Стоимость квадратного метра в проекте ниже среднего показателя по рынку Батуми, что делает вход в инвестицию доступным. Рассрочка без удорожания на 36 месяцев позволяет распределить финансовую нагрузку. Формат собственности не имеет ограничений для иностранцев, расширяя возможности для покупки. Объект подходит как для постоянного проживания, так и для ведения арендного бизнеса в курортном городе.
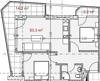
Метраж 70.16 м² представляет собой устойчивый инвестиционный актив с широким пулом арендаторов. Такое жилье легче сдать в долгосрочную аренду местным жителям или экспатам. Универсальность планировки повышает ликвидность объекта при перепродаже. Инвестор получает гибкий инструмент для управления недвижимостью в курортной зоне.
Уровень 19 считается комфортным для постоянного проживания в высотном здании. Здесь меньше шума с улицы, чем на нижних этажах, но сохраняется связь с землей. Такое расположение популярно на рынке аренды благодаря универсальности. Квартира на среднем этаже легко сдается как туристам, так и долгосрочным жильцам.
Цена $126 288 соответствует ликвидности объекта на первой береговой линии. Недвижимость у моря в Батуми сохраняет ценность независимо от конъюнктуры рынка. Готовый комплекс от надежного застройщика минимизирует риски обесценивания актива. Покупка по текущей стоимости фиксирует цену входа в растущий рынок.
Характеристики квартиры и преимущества комплекса делают её сильным предложением на рынке Батуми. Сочетание цены, локации и готовности объекта формирует высокую ценность актива. Для уточнения деталей планировки или условий рассрочки рекомендуется обратиться к менеджеру. Объект готов к рассмотрению для покупки или аренды.



