Доступ к резиденциям в Calligraphy Towers оптимизирован через гибкие финансовые условия, включая рассрочку до 36 месяцев с первым взносом от 20% без удорожания. Такая модель приобретения снижает порог входа на рынок Батуми и позволяет равномерно распределить нагрузку на бюджет инвестора. Свободный формат собственности для иностранных граждан упрощает процедуру оформления, делая комплекс доступным для международных портфелей недвижимости. Сочетание выгодных условий покупки с готовой инфраструктурой укрепляет позиции проекта в сегменте комфорт-плюс.
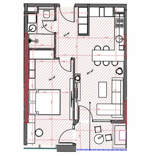
Метраж около 56.2 м² оптимален для формирования многофункциональной среды, где гостиная и кухонная зоны работают как единое целое. Подобная конфигурация востребована экспатами, ищущими комфортные условия для жизни в развивающемся районе Батуми. Наличие панорамного остекления расширяет визуальные границы интерьера, компенсируя стандартные параметры площади. Такой формат жилья поддерживает высокие ставки долгосрочной аренды за счёт сочетания практичности и эстетических характеристик комплекса.
Расположение на 38 этаже открывает беспрепятственные видовые перспективы на море и городской силуэт Батуми. Подобная высота обеспечивает максимальную приватность, исключая визуальный контакт с соседними застройками и пешеходными потоками района Багратиони. Усиленное панорамное остекление наполняет интерьеры светом, визуально расширяя пространство жилых помещений. Верхние ярусы комплекса формируют премиальный сегмент спроса, где ценится ощущение изоляции и статусность резиденции.
Параметр $81 490 демонстрирует рациональное соотношение метража, этажности и локации в развивающемся кластере Батуми. Стоимость жилья компенсирует затраты на содержание закрытой инфраструктуры и профессиональную управляющую компанию, обеспечивая бесперебойную работу сервисов. Инвестиционная привлекательность поддерживается свободным форматом собственности для иностранцев и поэтапной сдачей корпусов. Цена остаётся конкурентной на фоне аналогичных предложений, сохраняя потенциал роста при завершении проекта.
Квартира представляет собой сбалансированный актив в структуре рынка Батуми, где локация, отделка и сервис работают на долгосрочную ценность. Пространство оптимизировано для аренды туристического потока и комфортного проживания экспатов. Инфраструктура комплекса и удалённость от шумных туристических зон поддерживают стабильный спрос. Детализированные характеристики планировок и график ввода корпусов доступны для обсуждения с профильным специалистом.


